BH23 2TR - 3 bed christchurch semi home in Tasman Close, BH23 2TR

View on Property Piper

3 bedroom semi-detached house for sale in Christchurch, BH23

Summary - 3 TASMAN CLOSE CHRISTCHURCH BH23 2TR

3 bed 1 bath Semi-Detached

Practical family living near good schools and town amenities.
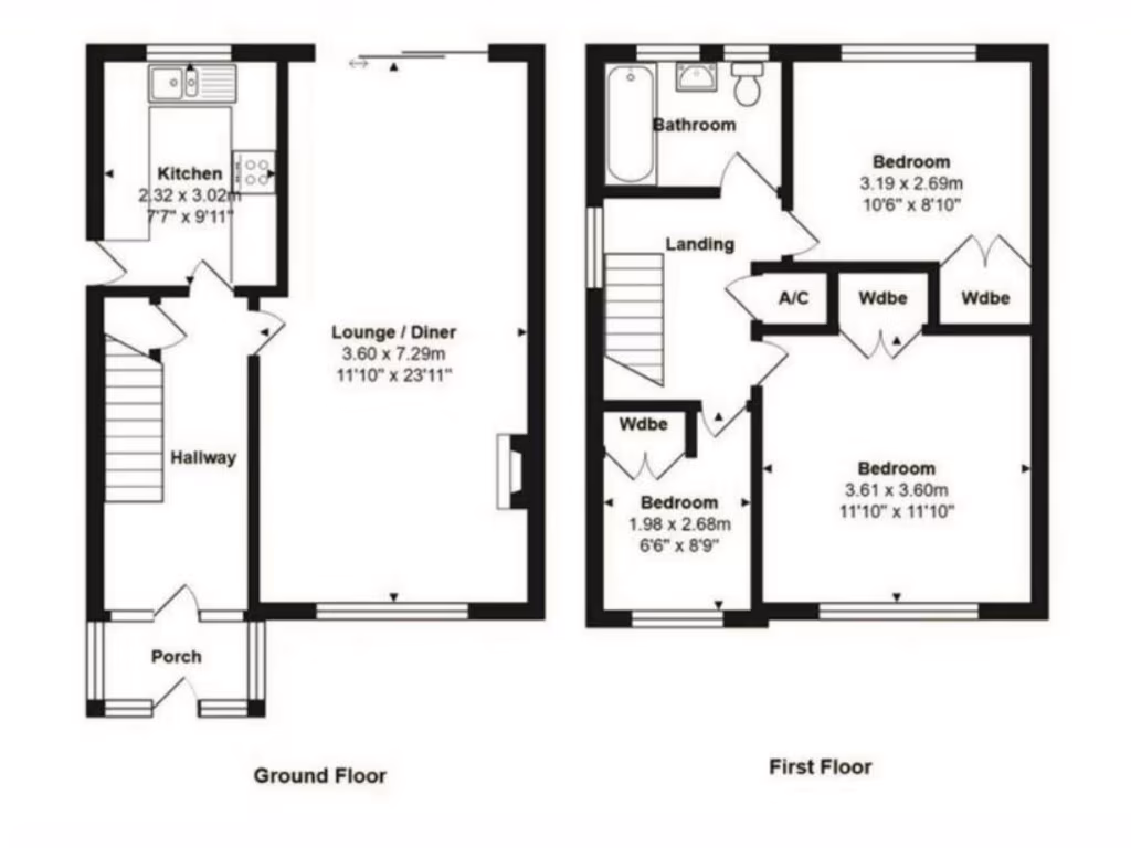
23ft11 lounge/dining room — spacious reception for the size
This three-bedroom semi-detached home in Christchurch offers a practical, family-friendly layout and a generous 23ft11 lounge/dining room for everyday living and entertaining. Built in the early 2000s with double glazing and mains gas central heating, the property presents a low-maintenance exterior and modern fixtures that suit busy households.

The fully enclosed, landscaped rear garden and attached car port with side driveway are strong practical features for families with children or pets, while the location sits comfortably within several well-rated school catchments including Christchurch Junior and Twynham schools. Local amenities and good transport links make town-centre access straightforward.

Internally the house is compact (approximately 649 sq ft) and efficient: three bedrooms, each with built-in wardrobes, and a single family bathroom. The timber-framed chalet construction and relatively small plot mean this is a manageable home rather than a large family estate — ideal for first-time buyers moving up or families seeking less upkeep.

Notable limitations are the modest overall size and single bathroom, which may feel tight for larger households. Broadband speeds are average and the small plot limits extension potential without planning permission. Buyers should also be aware of the timber frame finish — check for routine maintenance needs when viewing.

Overall this freehold semi-detached house suits buyers prioritising location, schooling and a low-maintenance garden over large internal floor area. It offers clear potential for cosmetic updating to personalise the interior while providing immediate, comfortable family living.

Property Details

Image Descriptions

Floorplan Description

Rooms

Textual Property Features

Target Audience

AI Tags

Detected Visual Features

EPC Details

Nearby Schools

Nearest Bars And Restaurants

,,,,}

Nearest General Shops

,,}

Nearest Grocery shops

,,}

Nearest Supermarkets

,,}

Nearest Religious buildings

,,}

Nearest Medical buildings

,,,}

Nearest Airports

}

Nearest Leisure Facilities

,,,,}

Nearest Tourist attractions

,,}

Nearest Train stations

,,,,}

Nearest Bus stations and stops

,,,,}

Nearest Hotels

,,}

Tags

Local Market Stats

AirBnB Data

Similar Properties

Meta

High Res Images

Compatible Images

Low res Images

Thumbnails

Raw Images

High Res Floorplan Images

Compatible Floorplan Images

Low res Floorplan Images

FloorplanImages Thumbnail

Raw Floorplan Images