**Standout Features:**
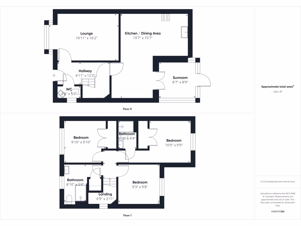
- Modern detached family home
- Three spacious bedrooms and one bathroom
- Newly built with freehold tenure
- Private corner plot with a garden
- Attached garage and driveway
- Chain free for immediate occupancy
- Located within a desirable residential estate
- Proximity to excellent schools and amenities
- Efficient gas central heating and double glazing
**Concise Summary:**
Discover an exceptional modern family home, perfectly situated on a private corner plot in a newly developed estate, combining a spacious interior, contemporary finishes, and an array of desirable features. Priced at £200,000, this detached property offers three bright bedrooms, including a master suite with an en-suite shower, complemented by a stylish family bathroom. The expansive lounge, accentuated by a lovely bay window, flows into a generous dining kitchen equipped with quality appliances and a charming conservatory that overlooks a fully enclosed garden—ideal for family gatherings and outdoor entertaining.
Convenience is key with an attached garage and private driveway ensuring secure off-street parking. Ideal for families, the location boasts easy access to a range of amenities, well-rated schools, and excellent transport links, making daily life more manageable. Additionally, the property features gas central heating, double glazing, and the benefit of no onward chain, presenting a rare opportunity to own a beautiful home ready for you to move in. Schedule your viewing today and envision your family's future in this delightful space!



























































































































