Newly renovated Victorian terrace with countryside views near Elsecar Heritage Centre.
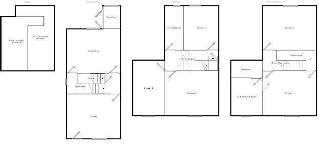
Five bedrooms across four floors, including converted attic main bedroom
This substantial four-storey, five-bedroom terraced house blends Victorian character with a newly renovated, contemporary interior. Spacious rooms and a modern open-plan kitchen make it well suited to family life, while generous bedroom sizes — including a converted attic — offer flexible sleeping and work-from-home options.
Enjoy wide open views from the rear elevation and a private rear garden for outdoor time. The location in Elsecar places the house steps from the Heritage Centre and local amenities, with good primary and secondary schools nearby and fast broadband and excellent mobile signal for remote working.
Practical considerations are straightforward: the property is leasehold (127 years remaining) with an option to purchase the freehold, sits on solid brick walls likely without cavity insulation, and is on a terraced street. Crime levels in the area are above average, and the garden is described as small-to-average — factors to weigh against the size and specification of the interior.
Overall this is a roomy, newly refurbished period home for families seeking village character with modern standards. It offers immediate move-in quality and sensible scope for further energy improvements if desired.
3 bedroom terraced house for sale in Church Street, Elsecar, S74 8, S74 — £265,000 • 3 bed • 2 bath • 473 ft²
5 bedroom detached house for sale in Doncaster Road, Barnsley, S70 1UD, S70 — £550,000 • 5 bed • 3 bath • 3337 ft²
4 bedroom detached house for sale in Bank End Road, Worsbrough, Barnsley, South Yorkshire, S70 — £280,000 • 4 bed • 2 bath • 707 ft²
3 bedroom detached house for sale in Huddersfield Road, Barnsley, S75 — £400,000 • 3 bed • 3 bath • 1595 ft²
3 bedroom end of terrace house for sale in Park Road, Barnsley, South Yorkshire, S70 — £175,000 • 3 bed • 1 bath • 2198 ft²
4 bedroom town house for sale in Wheatcrofts, Barnsley, S70 6BZ, S70 — £260,000 • 4 bed • 2 bath • 1716 ft²


















































































