Compact family house near Walkden centre with low-maintenance garden.
Detached three-bedroom house with vacant possession and no upward chain
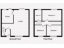
A practical three-bedroom detached home in Walkden, offered with vacant possession and no upward chain. The house is presented in good order with an L-shaped lounge/diner, a professionally fitted kitchen and a three-piece family bathroom — ready for immediate family occupation.
The plot is modest (approximately 700 sq ft internal) and the layout is compact, so the property suits first- and growing families seeking low-maintenance living near town amenities. Outside there is driveway parking for vehicles and a large paved patio garden designed for easy upkeep and entertaining.
Built in the early 1990s, the house benefits from gas central heating, double glazing and a filled cavity wall. Local schools receive strong Ofsted ratings and Walkden town centre is within easy reach, offering shops and transport links.
Buyers should note this is a leasehold property in a very deprived local area classification, which may affect long-term value and costs. Accommodation is modest in size with a single family bathroom and two bedrooms having fitted furniture; prospective purchasers should inspect room sizes to ensure they meet needs.
3 bedroom terraced house for sale in Walkden Road, Worsley, M28 — £225,000 • 3 bed • 1 bath • 1302 ft²
3 bedroom detached house for sale in Porcelain Street, Worsley, Manchester, M28 — £339,995 • 3 bed • 2 bath • 894 ft²
2 bedroom end of terrace house for sale in Warren Road, Worsley, Manchester, Greater Manchester, M28 — £200,000 • 2 bed • 1 bath • 836 ft²
4 bedroom detached house for sale in Cricketfield Lane, Worsley, Manchester, Greater Manchester, M28 — £360,000 • 4 bed • 2 bath • 1001 ft²
2 bedroom mews property for sale in Lidgett Close, Little Hulton, Manchester, M38 — £180,000 • 2 bed • 1 bath • 588 ft²
4 bedroom detached house for sale in Greenhaven Close, Worsley, Manchester, M28 — £375,000 • 4 bed • 2 bath • 1130 ft²


























































