SK7 3JW - 5 bed spacious family bungalow in Linney Road, SK7 3JW

View on Property Piper

5 bedroom detached bungalow for sale in Linney Road, Bramhall, SK7

Summary - 12 LINNEY ROAD BRAMHALL STOCKPORT SK7 3JW

5 bed 3 bath Detached Bungalow

Large private plot and versatile five-bedroom layout ideal for growing families.
Five bedrooms and three bathrooms, suitable for multi-generational families
Very large, private plot with mature gardens and paved patio
Brick summerhouse with electricity and heating included
Substantial driveway and attached single garage; multiple off-street spaces
High ceilings, generous room proportions throughout
Double glazing (post-2002) and EPC rated C
Built 1900–1929 — may need age-related maintenance or updating
Council tax banding described as expensive
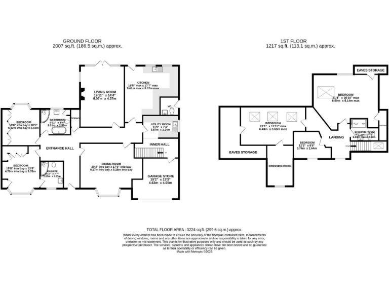
Set on a very large, mature plot on tree-lined Linney Road, this detached dormer bungalow offers generous family space across well-proportioned rooms. The current layout provides five bedrooms and three bathrooms, two reception rooms, a large kitchen/breakfast room and practical utility and storage — flexible accommodation for multi-generational living or home working.

The gardens are a standout: private, well-established lawns, raised vegetable beds, a large patio and a brick summerhouse with electricity and heating create easily maintained outdoor living and entertaining space. A substantial paved driveway plus an attached single garage provide ample off-street parking for several vehicles.

Interior presentation is good throughout with high ceilings, double glazing (post‑2002) and a C-rated EPC. The property has been cared for by long-term owners and offers comfortable, lived-in finishes including a limestone-surround gas fireplace. There is clear potential to reconfigure or update some areas to contemporary tastes, and the dormer/loft layout already provides first-floor accommodation.

Practical points to note: the house was built in the early 20th century, and while well maintained, buyers should allow for age-related maintenance and possible modernisation in places. Council tax is described as expensive. Broadband speeds are fast and local schools and green spaces are within easy reach, making this a strong option for established families seeking space and privacy in a desirable suburb.

Property Details

Brochure Descriptions

Image Descriptions

Floorplan Description

Rooms

Textual Property Features

Target Audience

AI Tags

Detected Visual Features

EPC Details

Nearby Schools

Nearest Bars And Restaurants

,,,,}

Nearest General Shops

,,}

Nearest Grocery shops

,,}

Nearest Supermarkets

,,}

Nearest Religious buildings

,,}

Nearest Medical buildings

,,,}

Nearest Airports

}

Nearest Leisure Facilities

,,,,}

Nearest Tourist attractions

,,}

Nearest Train stations

,,,,}

Nearest Bus stations and stops

,,,,}

Nearest Hotels

,,}

Tags

Local Market Stats

Similar Properties

Meta

High Res Images

Compatible Images

Low res Images

Thumbnails

Raw Images

High Res Floorplan Images

Compatible Floorplan Images

Low res Floorplan Images

FloorplanImages Thumbnail

Raw Floorplan Images