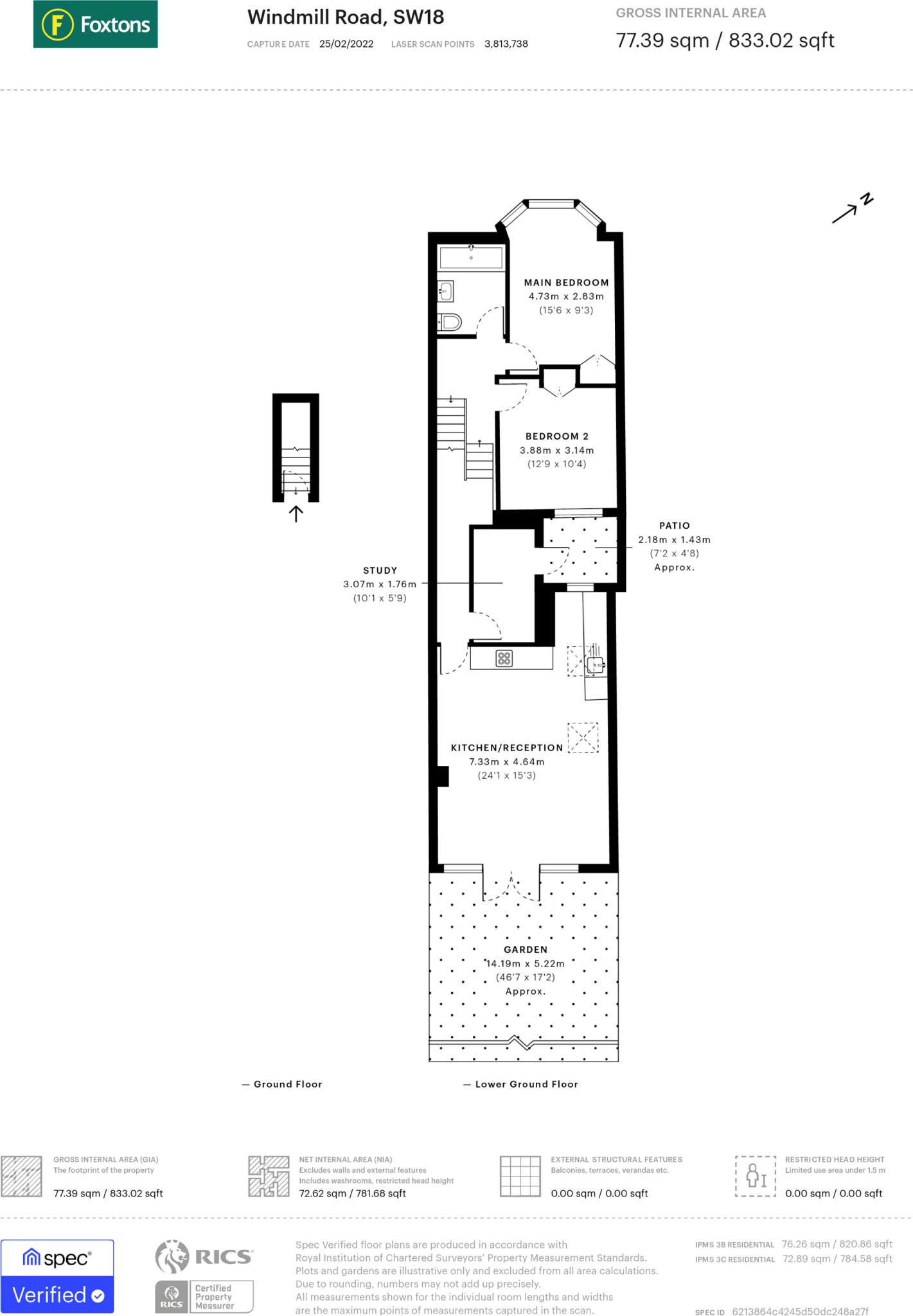
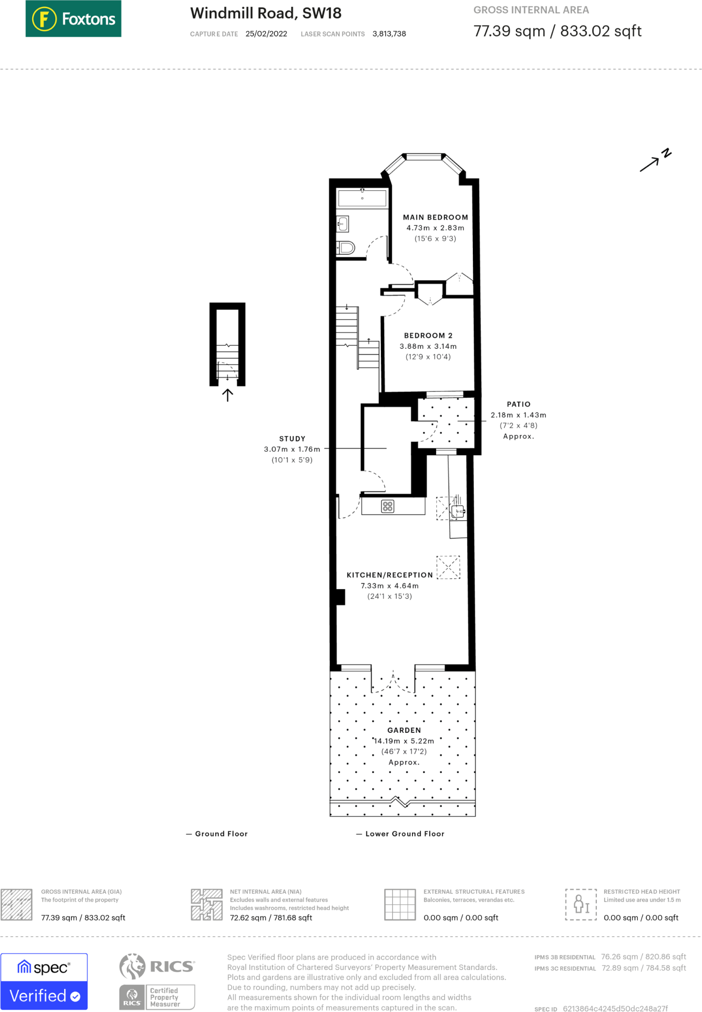
Stylish, move-in condition two-bed near common and station for first-time buyers.
Newly renovated lower-ground maisonette, move-in ready
Open-plan living/dining with integrated kitchen appliances
Private patio garden plus separate study with courtyard access
Two double bedrooms with built-in storage
Well-presented single bathroom (one bathroom only)
Freehold tenure; total size around 833 sq ft
Built 1900–1929; solid brick walls, no known cavity insulation
Lower-ground level — good ceiling heights but more enclosed
Bright, newly renovated lower-ground maisonette with contemporary finishes and an easy, well-connected Wandsworth location. The open-plan living and dining area flows to a private patio garden, giving a sense of indoor–outdoor living while retaining a compact, manageable footprint. Integrated kitchen appliances and double glazing complete a modern, move-in condition home.
The layout includes two double bedrooms with built-in cupboards, a separate study opening onto a small private courtyard, and a single well-presented bathroom. At around 833 sq ft, the flat suits first-time buyers or couples seeking close proximity to Wandsworth Common and Wandsworth Town station, plus local cafes and shops.
Practical points to note: the building dates from the early 20th century and external walls are solid brick (no known insulation), so future owners may wish to consider energy upgrades. The property sits on the lower-ground floor, which provides good ceiling height and light but may feel more enclosed than upper-level homes. Freehold tenure and fast broadband add everyday convenience.
2 bedroom flat for sale in Barmouth Road, Wandsworth, SW18 — £700,000 • 2 bed • 1 bath • 812 ft²
4 bedroom flat for sale in Strickland Row, Wandsworth, London, SW18 — £800,000 • 4 bed • 2 bath • 1509 ft²
2 bedroom flat for sale in Barmouth Road,
Wandsworth, SW18 — £725,000 • 2 bed • 2 bath • 1000 ft²
2 bedroom flat for sale in Aslett Street, London, SW18 — £550,000 • 2 bed • 1 bath • 764 ft²
3 bedroom terraced house for sale in Barmouth Road, London, SW18 — £875,000 • 3 bed • 2 bath • 1250 ft²
2 bedroom flat for sale in Wandsworth Common Westside, Wandsworth Common, London, SW18 — £775,000 • 2 bed • 1 bath • 1020 ft²






































































