Large rooms, outbuildings and a long garden in a quiet town-fringe setting.
- Chain free four-bedroom semi-detached home
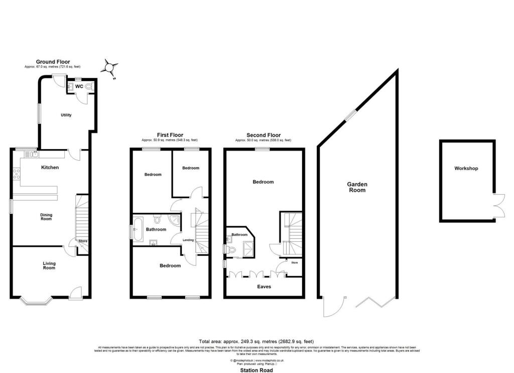
A spacious, chain-free four-bedroom semi-detached home set over three floors, ideal for growing families who need flexible living space. The ground floor offers a generous living room and a large open-plan kitchen/dining area that opens onto a long, low-maintenance rear garden. A substantial utility/ground-floor study and a downstairs cloakroom add practical family convenience.
Upstairs there are three first-floor bedrooms and a family bathroom, while the second floor is taken up by a very large attic bedroom with en-suite — a bright guest suite or teenage den. The long plot includes a large detached workshop/store and an impressive 42ft studio/games room, providing excellent home-office, hobby or ancillary rental potential.
The house dates from the 1930s–40s and has double glazing and mains gas central heating; however the cavity walls appear to be uninsulated, so buyers should budget for energy-improvement work. Some internal areas would benefit from cosmetic updating to maximise value. The property is freehold, chain free and sits in a very low-crime, affluent small-town neighbourhood with fast broadband and excellent mobile signal.
Location is family-focused: good-rated nearby primary schools and convenient walking access to local amenities, sports facilities and playing fields. Overall this is a sizeable, adaptable family home with strong scope for modernisation and value uplift, particularly by improving insulation and refreshing kitchens/bathrooms.
4 bedroom semi-detached house for sale in Batchelors, Puckeridge, SG11 — £550,000 • 4 bed • 2 bath • 1729 ft²
4 bedroom semi-detached house for sale in South Road, Puckeridge, Herts, SG11 — £639,995 • 4 bed • 2 bath • 1355 ft²
3 bedroom semi-detached house for sale in Station Road, Puckeridge, SG11 — £350,000 • 3 bed • 1 bath • 987 ft²
4 bedroom detached house for sale in Perowne Way, Puckeridge, SG11 — £600,000 • 4 bed • 1 bath • 1330 ft²
4 bedroom semi-detached house for sale in Tollsworth Way, Puckeridge, SG11 — £550,000 • 4 bed • 3 bath • 1352 ft²
4 bedroom semi-detached house for sale in Station Road, Puckeridge, SG11 — £650,000 • 4 bed • 2 bath • 1563 ft²










































































































