Bright family-friendly home with parking and garden close to local schools.
Full-width open-plan kitchen diner with French doors to garden
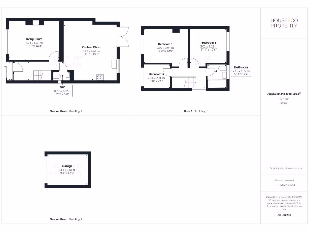
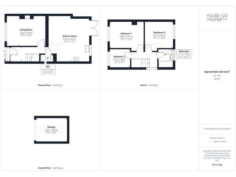
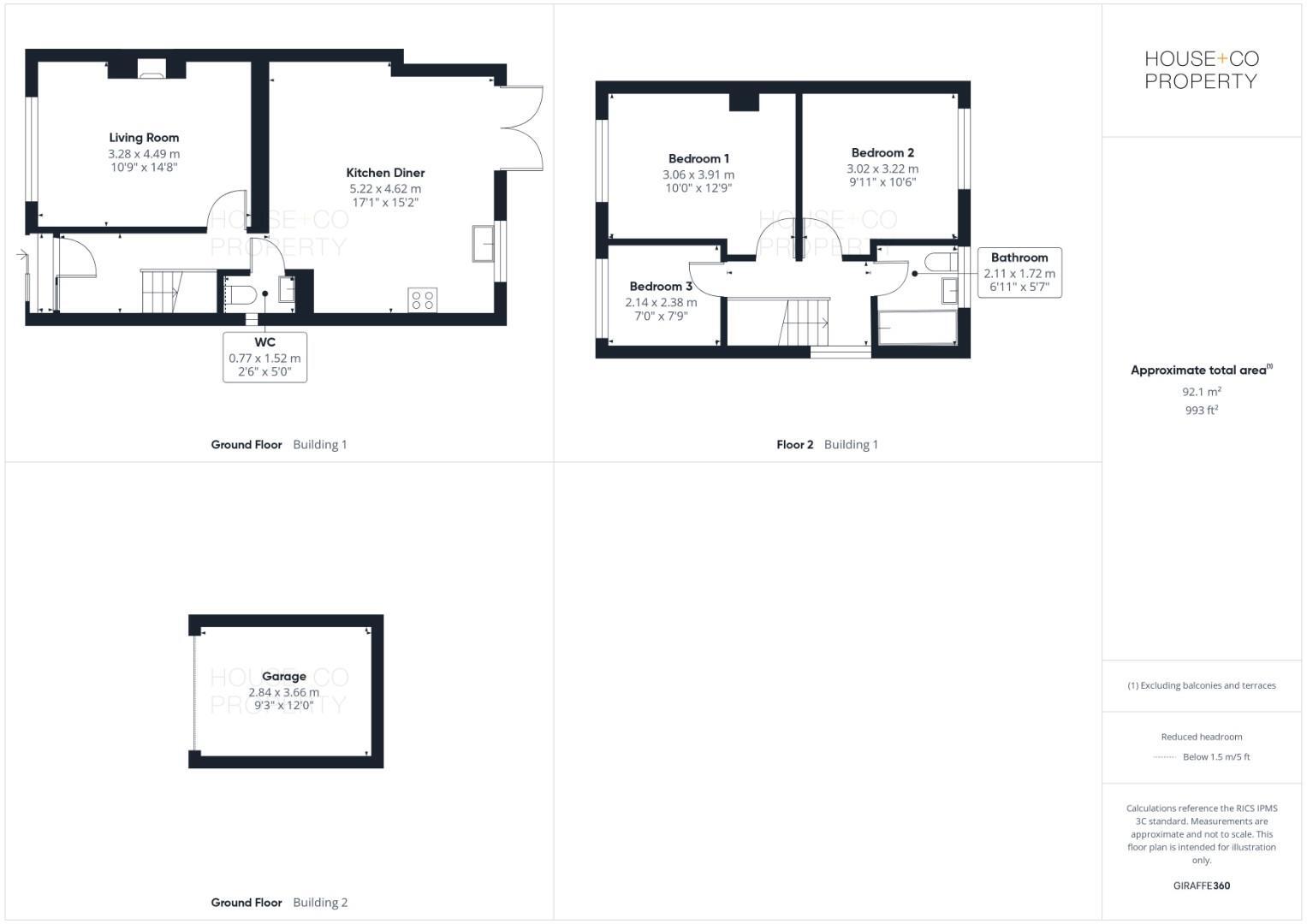
This 1960s semi-detached home on Dyrham Road offers practical family living with a bright, full-width kitchen–diner and a southerly-facing garden. The open-plan ground floor and French doors create an easy indoor–outdoor flow, ideal for family mealtimes and weekend entertaining. Off-street parking and a single garage add useful storage and parking options.
Upstairs are two double bedrooms and a smaller third bedroom suitable for a child or home office, plus a modern family bathroom. Double glazing and gas central heating from a combination boiler provide comfort and reasonable running costs. The property’s mid-century layout and average overall size make it well suited to first-time buyers or growing families seeking space near local schools and high street amenities.
Practical considerations: the cavity walls were built without insulation (assumed), so buyers should consider wall insulation to improve thermal performance. The plot is modest in size and the garage is compact, so outdoor space and storage are limited compared with larger family gardens. Overall, this is a sensible, well-located home with scope to personalise and improve energy efficiency over time.
3 bedroom terraced house for sale in Southfield Avenue, Bristol, BS15 — £325,000 • 3 bed • 1 bath • 980 ft²
3 bedroom terraced house for sale in Park View, Bristol, BS15 — £380,000 • 3 bed • 2 bath • 1160 ft²
3 bedroom semi-detached house for sale in Bibstone Kingswood Bristol, BS15 — £319,950 • 3 bed • 1 bath
3 bedroom semi-detached house for sale in Park Road, Warmley, Bristol, Gloucestershire, BS30 — £325,000 • 3 bed • 2 bath • 1006 ft²
3 bedroom terraced house for sale in Grass Meers Drive, Bristol, BS14 — £300,000 • 3 bed • 1 bath • 955 ft²
3 bedroom semi-detached house for sale in Baden Road, Kingswood, Bristol, Gloucestershire, BS15 — £345,000 • 3 bed • 1 bath • 776 ft²


















































































































































