Spacious three-bedroom house with garage, workshop and large driveway near top schools.
Extended three-bedroom detached home with two reception rooms and separate dining area
Converted from bungalow to two-storey — check building-regulation compliance
Private low-maintenance rear garden laid with Astroturf
18ft x 13ft rear garage plus full-length workshop with rear access
Off-street parking for up to six vehicles on large driveway
Double glazing fitted after 2002; mains gas boiler and radiators
EPC rating D — energy improvements may be needed
Freehold, large overall size with decent plot and development potential
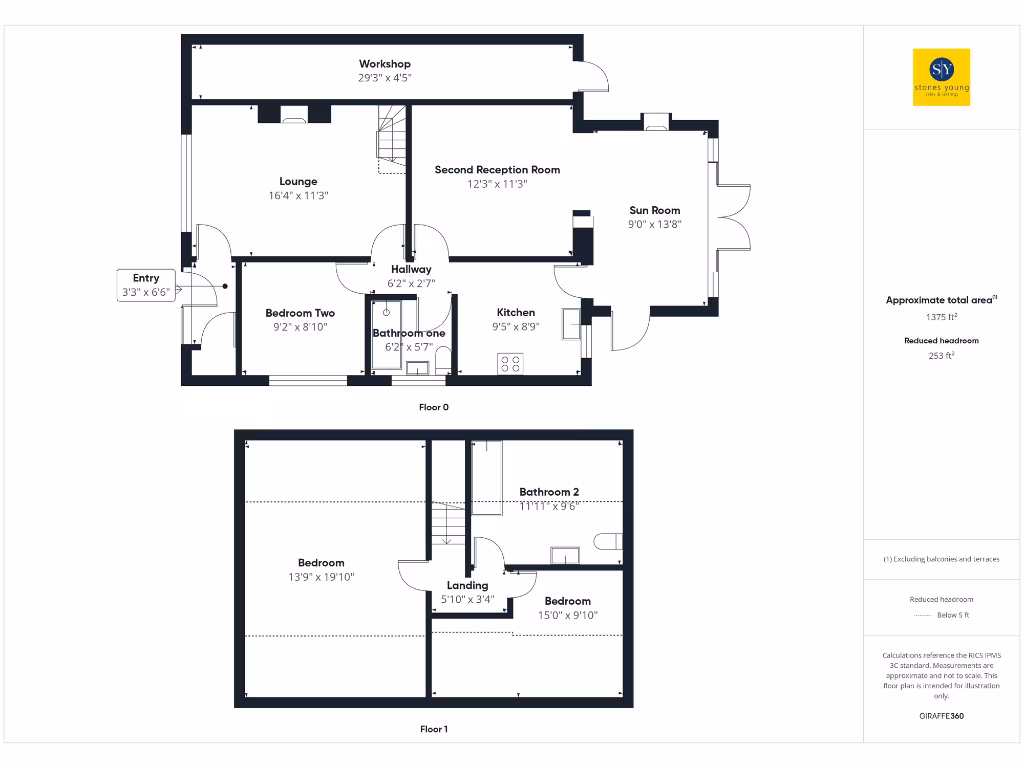
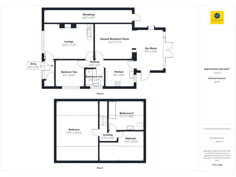
Set on a generous plot in Langho, this extended three-bedroom detached home combines mid-century bones with later upgrades to create a flexible family layout. Originally a bungalow and thoughtfully converted to two storeys, the house offers two reception rooms, separate dining with a feature log burner, and a modern ground-floor bathroom for everyday convenience.
Upstairs are two large bedrooms with Ribble Valley views and a family bathroom; the third bedroom is on the ground floor, creating versatile sleeping arrangements or home-office space. Practical features include double glazing installed after 2002, mains gas boiler and radiators, an 18ft x 13ft rear garage, a full-length workshop with rear access, and off-street parking for up to six cars.
Outside is a private, low-maintenance rear garden laid with Astroturf and a decent plot providing scope for further extension or reconfiguration. While the property is presented well, the bungalow-to-two-storey conversion is a material point — buyers should verify compliance with building regulations and consider the EPC D rating for potential energy improvements.
Located near several well-rated primary and secondary schools and good transport links, this freehold home suits families seeking space and practical low-maintenance outdoor areas, or buyers wanting a property with clear scope to add value.
5 bedroom detached house for sale in Lowerfield, Langho, Ribble Valley, BB6 — £545,000 • 5 bed • 2 bath • 1726 ft²
3 bedroom semi-detached house for sale in Bushburn Drive, Langho, BB6 — £285,000 • 3 bed • 1 bath • 916 ft²
4 bedroom detached house for sale in Whitehalgh Lane, Langho, BB6 — £475,000 • 4 bed • 2 bath • 2158 ft²
4 bedroom semi-detached house for sale in Whalley Road, Langho, Ribble Valley, BB6 — £415,000 • 4 bed • 2 bath • 1796 ft²
4 bedroom detached house for sale in Fields End, Langho, BB6 — £399,950 • 4 bed • 2 bath • 1410 ft²
4 bedroom detached house for sale in Whinney Lane, Langho, BB6 — £650,000 • 4 bed • 2 bath • 2144 ft²














































































