Modern, low-maintenance two-bedroom flat with parking near Milngavie town centre.
Large dual-aspect lounge with balcony and reservoir views
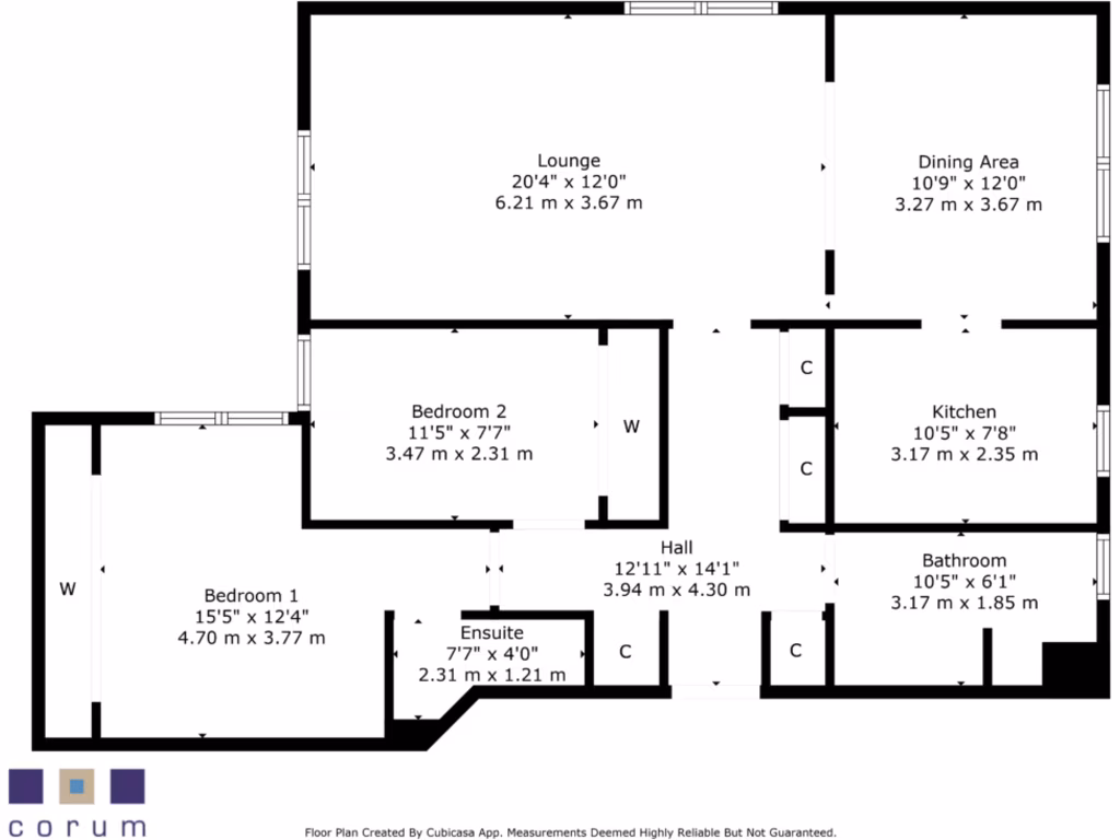
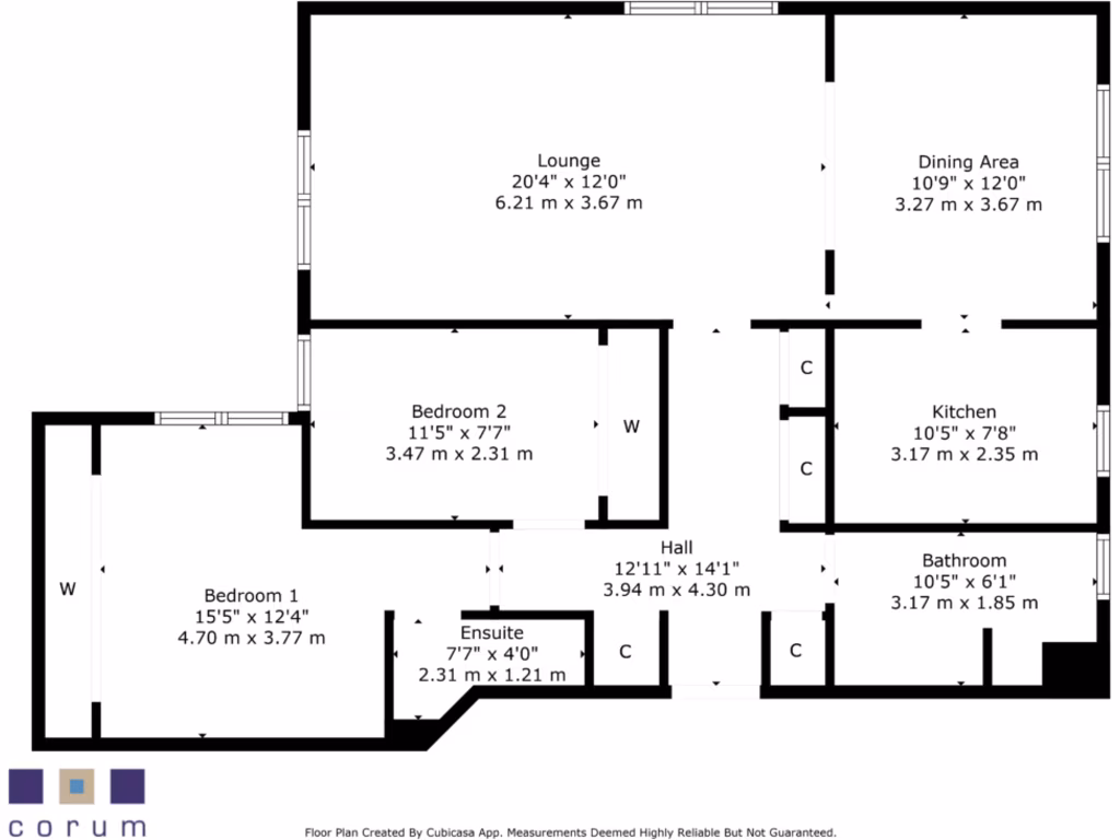
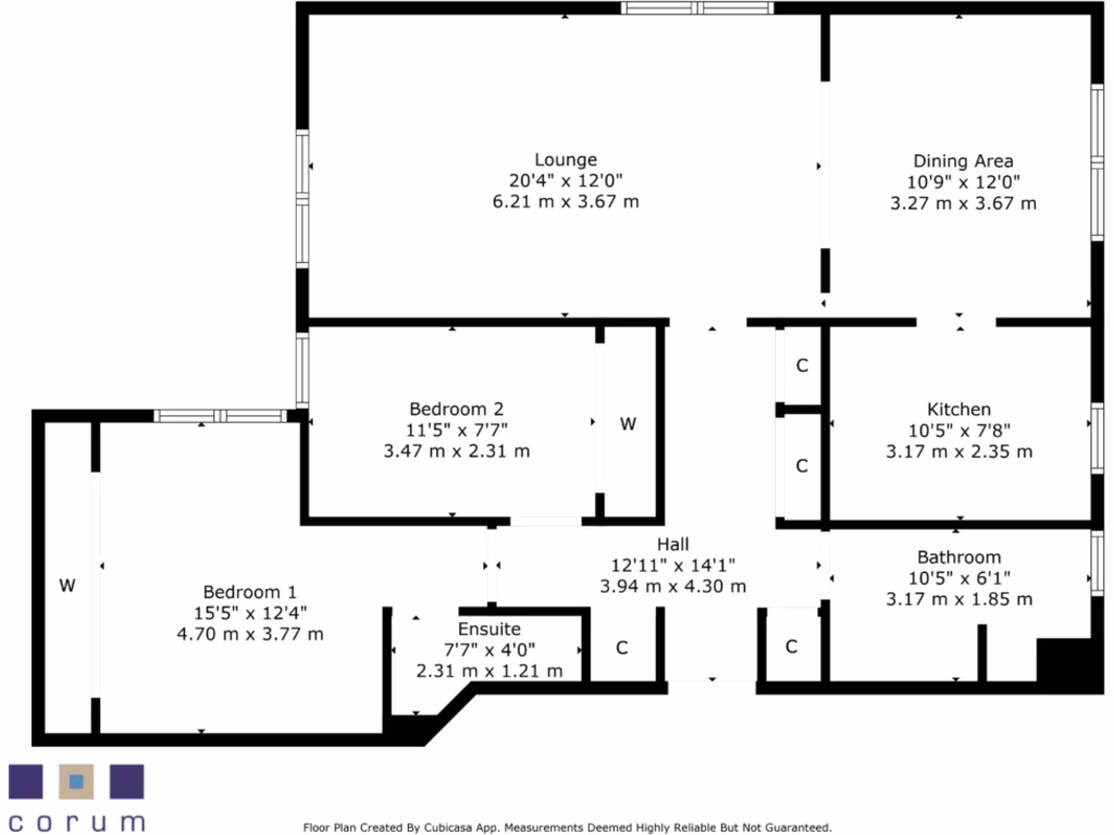
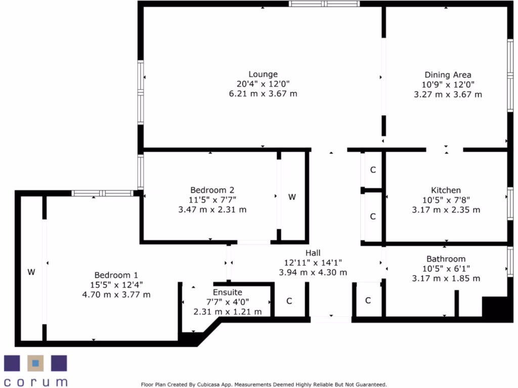
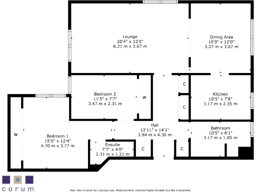
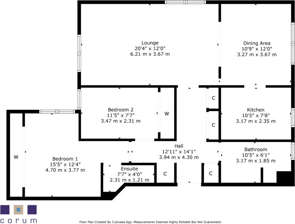
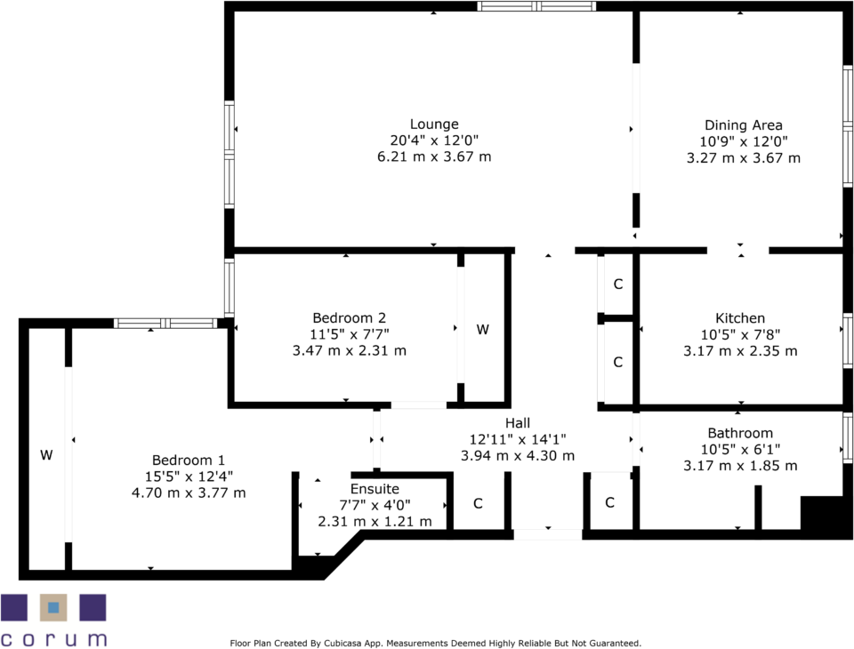
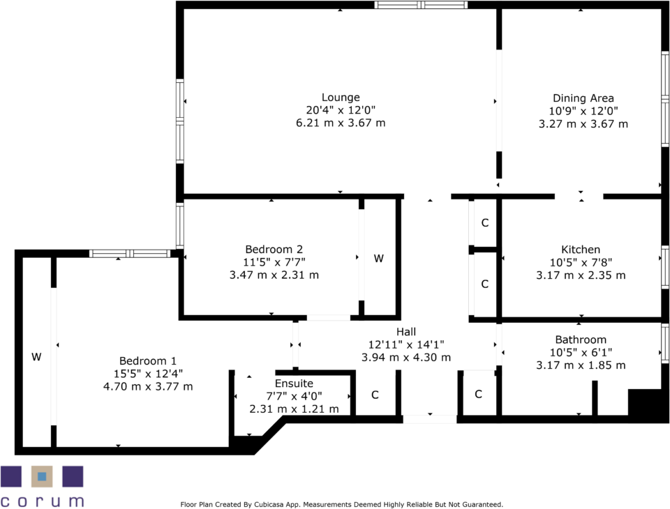
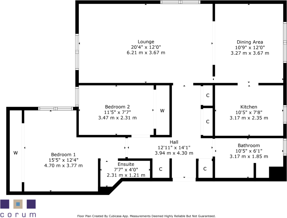
Set within a quiet cul-de-sac in Milngavie, this two-bedroom freehold flat offers generous living space and practical modern finishes. The dual-aspect lounge with large windows and a balcony captures natural light and pleasant reservoir views, creating an inviting main living area for everyday life or entertaining.
The layout is straightforward and comfortable: a well-equipped kitchen, main bedroom with integrated wardrobes and an ensuite, a second double bedroom with wardrobes, main bathroom with shower-over-bath, and plentiful hall storage. Residents’ off-street parking, secure entry and well-maintained communal areas add convenience and low-external-maintenance living.
Buyers should note material running and area considerations: heating is electric, which can be more expensive than gas; broadband speeds are slow; and council tax is above average. Local area indicators also show higher deprivation levels despite Milngavie’s strong amenities and excellent rail links to Glasgow and Edinburgh.
This property suits a first-time buyer or investor seeking a modern, low-upkeep flat on a desirable suburban edge. It offers immediate move-in condition with scope to personalise cosmetic finishes and improve energy efficiency over time.
2 bedroom flat for sale in Clober Road, Milngavie, Glasgow, East Dunbartonshire, G62 — £200,000 • 2 bed • 1 bath • 724 ft²
2 bedroom ground floor flat for sale in Flat 1, 21 Woodlands Street, Milngavie, G62 8NX, G62 — £165,000 • 2 bed • 1 bath • 840 ft²
2 bedroom flat for sale in 35 Ellangowan Court, Milngavie, G62 8PP, G62 — £300,000 • 2 bed • 2 bath • 861 ft²
2 bedroom flat for sale in Lennox Avenue, Milngavie, Glasgow, East Dunbartonshire, G62 — £135,000 • 2 bed • 1 bath • 685 ft²
1 bedroom flat for sale in 97 Mugdock Road, Milngavie, G62 8PA, G62 — £130,000 • 1 bed • 1 bath • 549 ft²
2 bedroom flat for sale in Oatlands Square, Glasgow, Glasgow City, G5 — £175,000 • 2 bed • 2 bath • 850 ft²


















































































































































































































































































































































































