Large, renovated four-bedroom house near Boldmere High Street and good schools.
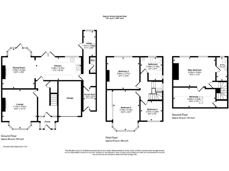
Four double bedrooms including 2019 loft conversion primary suite
A spacious, recently renovated four-bedroom home set in a quiet residential pocket of Boldmere, just moments from the High Street. The house benefits from a 2019 loft conversion creating a primary bedroom suite with dressing room and en‑suite, plus two well-proportioned doubles and a family bathroom on the first floor. The open-plan kitchen/diner and separate lounge provide flexible living space for families and entertaining.
Outside, a large driveway (installed 2014) and off-street parking serve an integral garage, while the newly landscaped rear garden and patio create a low-maintenance private outside space. Practical additions include a side utility/ground-floor WC and abundant kitchen storage — useful for a busy household. Broadband and mobile signals are strong and local crime levels are very low.
Important practical points: the property is offered leasehold with approximately 908 years remaining and a nominal ground rent of £5 per year. There is a purchaser fee of 1% plus VAT of the selling price (subject to a minimum) payable on completion — buyers should factor this into costs and check legal documents. Council tax is above average for the area.
This well-maintained house combines period character with contemporary improvements, making it suited to families seeking sizeable accommodation, good local schools, and easy access to Boldmere amenities and transport links. While the long lease and low ground rent are straightforward, prospective buyers should confirm tenure details and the purchaser fee with their solicitor prior to offer.
4 bedroom semi-detached house for sale in College Road, Sutton Coldfield, B73 — £425,000 • 4 bed • 2 bath • 1492 ft²
4 bedroom detached house for sale in Beacon Road, Sutton Coldfield, B73 5SX, B73 — £585,000 • 4 bed • 1 bath
3 bedroom semi-detached house for sale in Jockey Road, Boldmere, B73 — £350,000 • 3 bed • 1 bath • 1131 ft²
4 bedroom semi-detached house for sale in Church Road, Sutton Coldfield, B73 5RY, B73 — £425,000 • 4 bed • 2 bath • 1157 ft²
4 bedroom detached house for sale in Walsall Road, Sutton Coldfield, B74 4NP, B74 — £875,000 • 4 bed • 2 bath • 1709 ft²
4 bedroom detached house for sale in New Church Road, Sutton Coldfield, B73 5RT, B73 — £495,000 • 4 bed • 1 bath • 1456 ft²










































































































































































