Large plot facing green space, ideal for growing families.
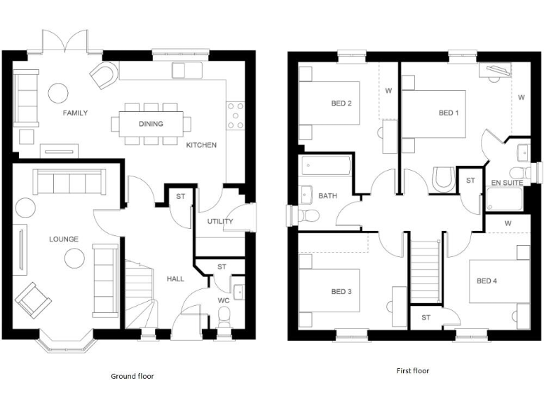
Four double bedrooms with principal en-suite
This four-bedroom detached house sits on a very large plot facing open green space, offering space and privacy for family life. The ground floor has a generous kitchen/diner with patio doors, a separate lounge, utility room and guest WC — practical for busy households. Upstairs are four bedrooms, a family bathroom and an en-suite to the principal bedroom.
Practical features include a detached garage, three off-street parking spaces and an anticipated EPC rating of B. The property is freehold and has no reported flood risk, making it a straightforward long-term home with good energy credentials.
Local amenities are close by — shops, sports facilities, playgrounds and several primary schools rated Good. Note that the nearest larger secondary has a Requires Improvement Ofsted grade, and the wider area is recorded as very deprived; buyers should check local services and long-term area plans if this is a concern.
The house appears well presented in a modern style and offers room for personalization and modest updating to suit tastes. It’s best suited to families seeking space, parking and easy access to green areas, but informed buyers should consider area-wide socioeconomic factors when deciding to view.
4 bedroom detached house for sale in Hughes Meadow, Lawley, Telford, TF4 — £410,000 • 4 bed • 2 bath
4 bedroom detached house for sale in Wooding Drive, Lawley, TF3 — £379,950 • 4 bed • 2 bath • 1391 ft²
4 bedroom detached house for sale in Grange Farm Rise, Dawley Bank , TF4 — £347,000 • 4 bed • 2 bath • 1515 ft²
4 bedroom detached house for sale in Stableyard Court, Lawley Bank, Telford, TF4 2PE, TF4 — £425,000 • 4 bed • 2 bath • 1154 ft²
4 bedroom detached house for sale in Sandhole Crescent, Lawley, Telford, Telford And Wrekin, TF3 — £300,000 • 4 bed • 2 bath • 1319 ft²
4 bedroom detached house for sale in Stainburn Road, Lawley Village, Telford, Shropshire, TF4 — £375,000 • 4 bed • 3 bath • 1583 ft²






































