**Standout Features:**
- Semi-detached Victorian-style architecture
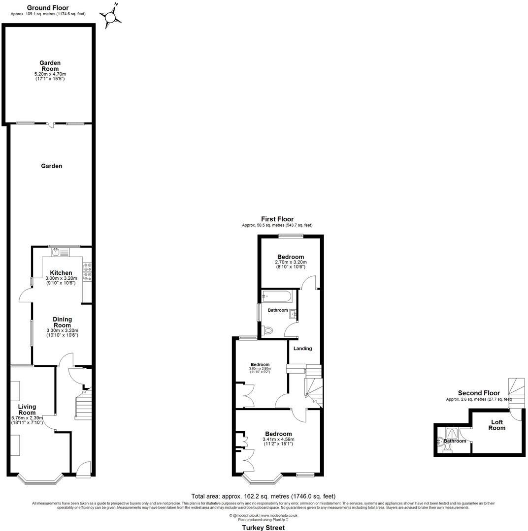
- Three spacious bedrooms, perfect for families
- Extended fitted kitchen/diner ideal for entertaining
- Large private rear garden (60-70 ft) with an outbuilding
- Gas central heating and double glazing for energy efficiency
- Loft space for additional storage
Nestled on Turkey Street, this charming semi-detached house presents a wonderful opportunity for families seeking a blend of character and modern conveniences. With a generous 1,746 square feet of living space, it features three well-sized bedrooms, a spacious through lounge for relaxation, and an extended kitchen/diner, perfect for lively gatherings. The first-floor family bathroom adds convenience for daily routines, while the gas central heating and double glazing ensure warmth and comfort year-round.
Step outside to a large private rear garden, approximately 60 to 70 feet in length, providing plenty of space for children to play or for gardening enthusiasts to flourish. The added bonus of an outbuilding enhances the versatility of this outdoor space—ideal as a workshop or extra storage. Positioned in a vibrant urban area with various amenities and good schools nearby, this home offers comfort, potential for personalization, and a community atmosphere that young families crave. Don’t miss this chance to claim your slice of suburban charm—properties like this are in high demand!
3 bedroom semi-detached house for sale in Gilbert Street, Enfield, EN3 — £475,000 • 3 bed • 1 bath • 886 ft²
4 bedroom semi-detached house for sale in Elmhurst Road, Enfield, EN3 — £500,000 • 4 bed • 1 bath • 1357 ft²
4 bedroom terraced house for sale in Holly Road, Enfield, EN3 — £500,000 • 4 bed • 1 bath • 1271 ft²
4 bedroom end of terrace house for sale in Turkey Street, Enfield, EN3 — £519,995 • 4 bed • 1 bath • 1265 ft²
3 bedroom semi-detached house for sale in Elmhurst Road, Enfield, EN3 — £450,000 • 3 bed • 1 bath • 943 ft²
2 bedroom house for sale in Turkey Street, Enfield, EN3 — £410,000 • 2 bed • 2 bath • 473 ft²










































































































































