Bright single-level living with sunny, private garden and generous parking close to high street.
Brand-new refurbishment throughout; property essentially rebuilt and extended
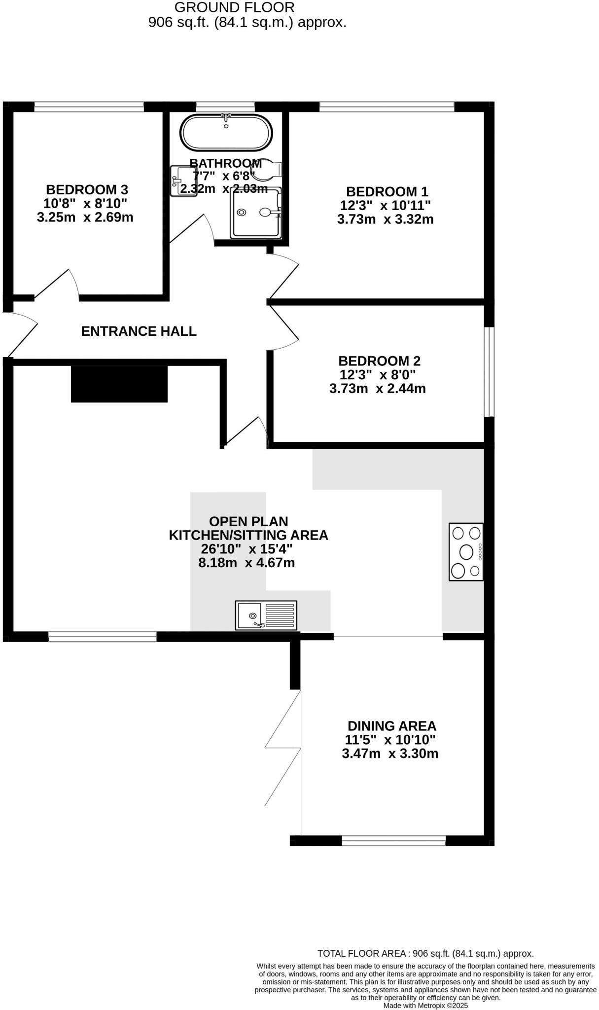
Large open-plan kitchen and sitting room with vaulted garden room
Three good-size bedrooms; single modern bathroom (bath + shower)
Private, sunny low-maintenance rear garden with large timber deck
Driveway for several vehicles plus single garage with power and light
Area has above-average crime and wider indicators of deprivation; check locality
Freehold, chain-free sale; approx 906 sq ft, council tax band D
Solar panels visible externally; double glazing and mains gas central heating
This substantially refurbished three-bedroom single-storey home sits extremely close to Worle High Street and offers a ready-to-move-in layout ideal for downsizers or couples seeking one-floor living. The property was stripped back and extended to the rear, creating a bright open-plan kitchen and sitting area plus a vaulted garden room with bifold doors that extends usable living space.
The garden is private, sunny and designed for low maintenance, with a large timber deck and mature screening. Off-street parking for several vehicles and a single garage give practical vehicle storage and workshop potential. The vendor confirms freehold tenure and a chain-free sale for a straightforward purchase.
Practical features include mains gas central heating, double glazing, quality new kitchen and bathroom fittings, and solar panels (visible externally). The home is average in overall size at about 906 sq ft and sits on a decent plot. Energy rating is C and council tax band D.
A few local and property notes to consider: crime levels are recorded above average in the area and the wider neighbourhood shows indicators of deprivation; buyers should weigh location factors against the strong accommodation and recent full refurbishment. Some records list the built form as semi‑detached, so purchasers should confirm boundaries and adjacency if separation is important.
3 bedroom detached bungalow for sale in Spring Hill, Worle - FAB BUNGALOW, BS22 — £399,000 • 3 bed • 2 bath • 1127 ft²
2 bedroom detached bungalow for sale in Savernake Road, Worle - SUPERB CONDITION, BS22 — £299,995 • 2 bed • 1 bath • 738 ft²
3 bedroom detached bungalow for sale in Lower Kewstoke Road, Weston-Super-Mare, BS22 — £450,000 • 3 bed • 1 bath • 1216 ft²
2 bedroom detached bungalow for sale in Woodpecker Drive, BS22 — £315,000 • 2 bed • 1 bath • 2126 ft²
3 bedroom detached bungalow for sale in Moor Lane, Weston-super-Mare, BS22 — £375,000 • 3 bed • 1 bath • 1300 ft²
3 bedroom bungalow for sale in Pine Hill, Worle - Views to Mendip Hills - No Onward Chain, BS22 — £350,000 • 3 bed • 2 bath






















































































