**Standout Features:**
- Expansive 3,177 sq. ft. detached home on a 0.25-acre plot
- Private gated entrance with large gravel driveway for multiple vehicles
- Stunning backdrop of protected National Trust countryside
- Ground floor bedroom with en-suite and dressing room
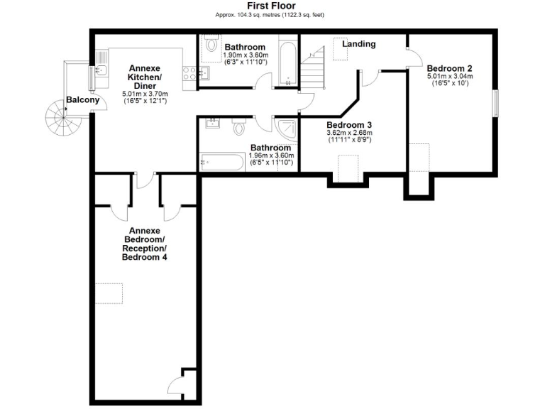
- Versatile annexe with separate entrance
- Convenient location near Oxford (23 miles) and Swindon (11.5 miles)
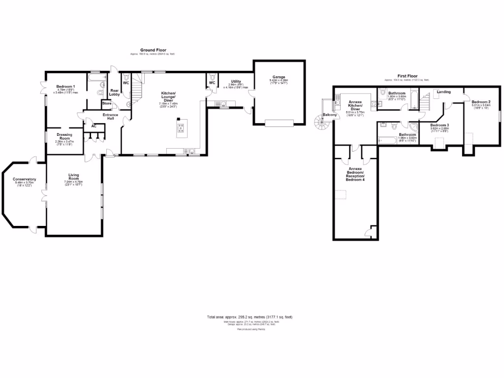
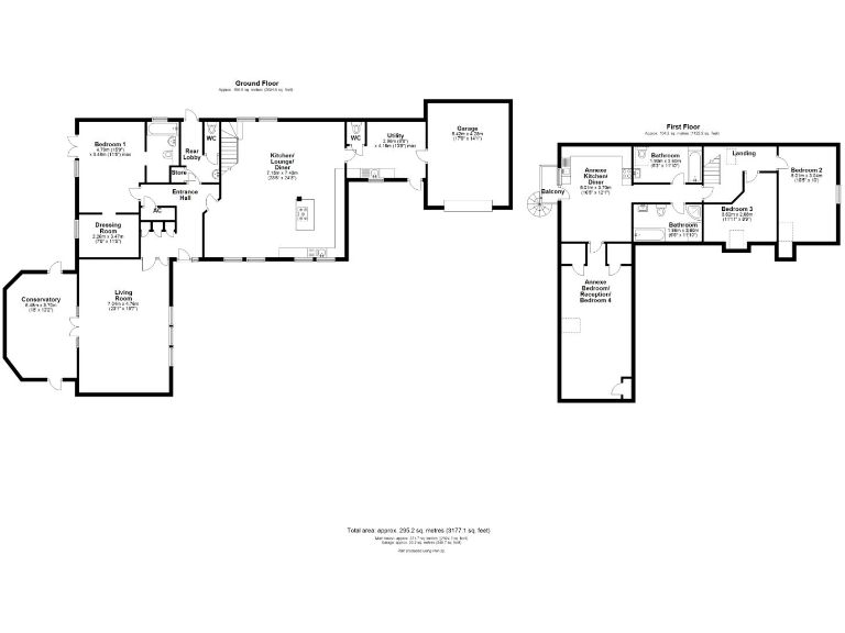
Nestled in the picturesque village of Great Coxwell, this spacious detached home perfectly combines comfort and rural tranquility. Spanning over 3,177 sq. ft., the property features 4 generous bedrooms, including a desirable ground floor suite with an en-suite and dressing room, ideal for multi-generational living or guests. An expansive 24' x 23' kitchen/lounge/diner and a 23' x 15'7 living room provide ample space for family gatherings and entertaining.
The annexe offers unique flexibility as a private retreat, home office, or rental opportunity, with its separate entrance. Set on a significant 0.25-acre plot, the property boasts a beautifully landscaped garden and a large gravel driveway accommodating up to six vehicles, ensuring both convenience and privacy.
While the home enjoys a serene rural setting, it's just a short drive to Faringdon's local amenities and within accessible reach of Oxford and Swindon, blending conveniently with a quiet lifestyle. For families, quality primary and secondary educational options abound in the vicinity. This exceptional property, with its charming features and potential for future renovations, won’t last long – seize the chance to make it your private sanctuary today!
4 bedroom detached house for sale in Great Coxwell, Faringdon, Oxfordshire, SN7 — £1,020,000 • 4 bed • 3 bath • 2513 ft²
2 bedroom semi-detached house for sale in Cherry Orchard, Great Coxwell, SN7 — £365,000 • 2 bed • 1 bath • 1301 ft²
4 bedroom detached house for sale in Great Coxwell, Faringdon, Faringdon, SN7 — £450,000 • 4 bed • 1 bath • 1878 ft²
3 bedroom link detached house for sale in The Laurels, Great Coxwell, Faringdon, Oxfordshire, SN7 — £425,000 • 3 bed • 1 bath • 991 ft²
4 bedroom detached house for sale in Shrivenham Road, Longcot, SN7 — £900,000 • 4 bed • 3 bath • 2400 ft²
4 bedroom detached bungalow for sale in The Ride, Tubney Wood, OX13 — £975,000 • 4 bed • 2 bath • 1435 ft²






































































































































