New-build four-bedroom house with garden, garage and £18,000 contribution.
- New-build detached four double bedrooms, about 1,228 sq ft
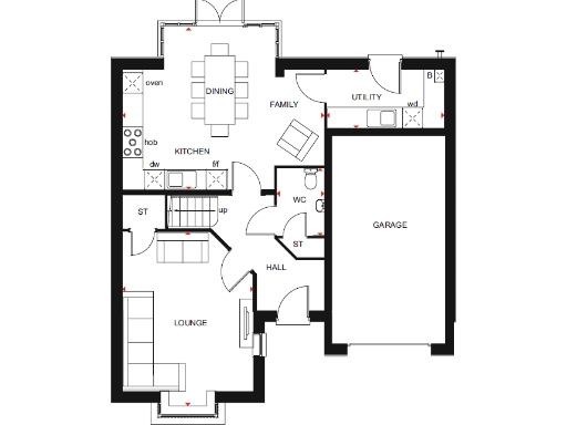
- Open-plan kitchen-family-dining with French doors to garden
- Main bedroom with en suite; family bathroom upstairs
- South-west facing garden; overlooks landscaped open space
- Integral garage plus side-by-side parking for two cars
- Solar PV and energy-efficient features fitted
- Very slow broadband speeds in the area
- Wider area assessed as relatively deprived; consider resale
This four-double-bedroom new-build on Tansy Road is arranged over two storeys with an open-plan kitchen-family-dining area and a separate bay-fronted lounge. The plot overlooks landscaped open space and benefits from a south-west facing garden, an integral garage and side-by-side driveway parking for two cars. Solar PV panels and other energy-efficient features are fitted to help running costs.
The ground floor layout includes a utility room and French doors from the kitchen-diner to the garden, while upstairs provides a main bedroom with en suite plus three further double bedrooms and a family bathroom. With about 1,228 sq ft of accommodation the rooms are medium-to-large and suit a growing family needing flexible living space.
Practical points to note: this is a new-build home in a larger suburban development and comes with typical developer finishes and low maintenance landscaping. Broadband speeds in the area are reported as very slow, and the wider neighbourhood is assessed as relatively deprived, which may affect commuting or resale considerations. The sale includes a contribution of £18,000 toward your mortgage or deposit, which reduces upfront cost pressure.
Overall this property suits families looking for a modern, low-maintenance family home with good room sizes, outdoor space and on-plot parking. Buyers seeking strong digital connectivity or a central urban location should factor in the very slow broadband and the development’s suburban setting.
4 bedroom end of terrace house for sale in Tansy Road,
Priors Hall Park,
Corby,
Northamptonshire,
NN17 5BU, NN17 — £315,000 • 4 bed • 1 bath • 762 ft²
4 bedroom detached house for sale in Tansy Road,
Priors Hall Park,
Corby,
Northamptonshire,
NN17 5BU, NN17 — £412,000 • 4 bed • 1 bath • 1183 ft²
3 bedroom terraced house for sale in Tansy Road,
Priors Hall Park,
Corby,
Northamptonshire,
NN17 5BU, NN17 — £259,995 • 3 bed • 1 bath • 736 ft²
4 bedroom detached house for sale in Blairgowrie Road, Priors Hall Park, NN17 — £400,000 • 4 bed • 2 bath • 1564 ft²
4 bedroom detached house for sale in Kirby Woodlands
Monument Way
Priors Hall Park
Corby
NN17 3AS
, NN17 — £584,995 • 4 bed • 1 bath • 1749 ft²
4 bedroom terraced house for sale in Tansy Road,
Priors Hall Park,
Corby,
Northamptonshire,
NN17 5BU, NN17 — £310,000 • 4 bed • 1 bath • 762 ft²






























































