**Standout Features:**
- Located in the desirable Black Isle region, near Munlochy.
- Approximately 0.425 acres of flat land with mature trees and beautiful countryside views.
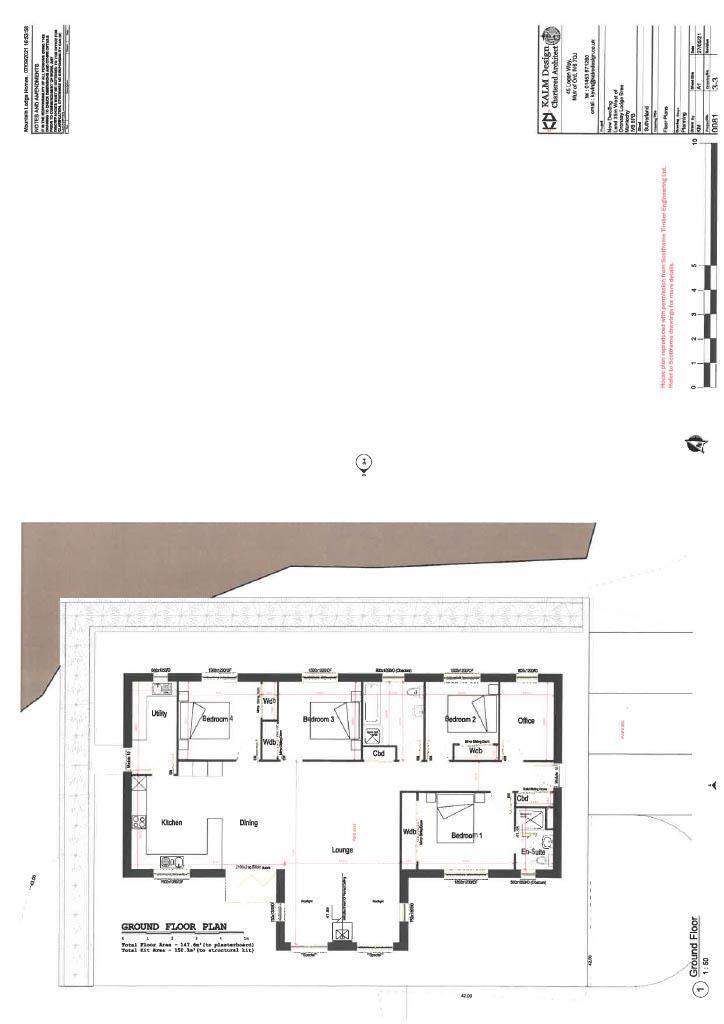
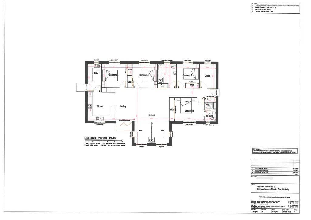
- Full planning permission granted for the construction of a four-bedroom house (reference 21/03262/FUL).
- On-site caravan included in the sale.
- Services available: mains water, drainage, and electricity.
- Convenient access to local village amenities and only 8 miles from Inverness.
**Summary Description:**
Discover a golden opportunity in the picturesque Black Isle, near the vibrant village of Munlochy. This expansive flat plot, extending to approximately 0.425 acres, comes fully equipped with mains water, drainage, and electricity, making it an ideal canvas for your dream home. With full planning permission in place for a spacious four-bedroom house, envision a serene lifestyle surrounded by nature, complimented by a generous garden space awaiting your personal touch.
This unique land parcel is perfect for families, retirees, or investors seeking a tranquil retreat or potential rental opportunities. The nearby village offers essential amenities, including a shop, primary school, and burgeoning café scene, while the pulse of Inverness is just a short drive away. Opportunities like this, with planning approval and a landscape ready for development, don’t last long—secure your future in this enchanting locale today!
Plot for sale in Plot at Muiryden Farm, Fortrose, IV10 — £85,000 • 1 bed • 1 bath
Plot for sale in Plot at Craigleach, Dunain, Inverness, IV3 — £147,500 • 1 bed • 1 bath
Plot for sale in Site at Plot 2, Drumossie Brae, Drumossie, Inverness, IV2 5BB, IV2 — £195,000 • 1 bed • 1 bath
Plot for sale in Crocnaboull, Muir of Ord, Highland, IV6 — £140,000 • 1 bed • 1 bath
Property for sale in Development Opportunity at Balvaird, Muir of Ord, IV6 — £225,000 • 1 bed • 1 bath
Plot for sale in Plot 1, Culbokie, Dingwall. IV7 8JH, IV7 — £110,000 • 1 bed • 1 bath










































