Two double bedrooms with built-in storage in the master
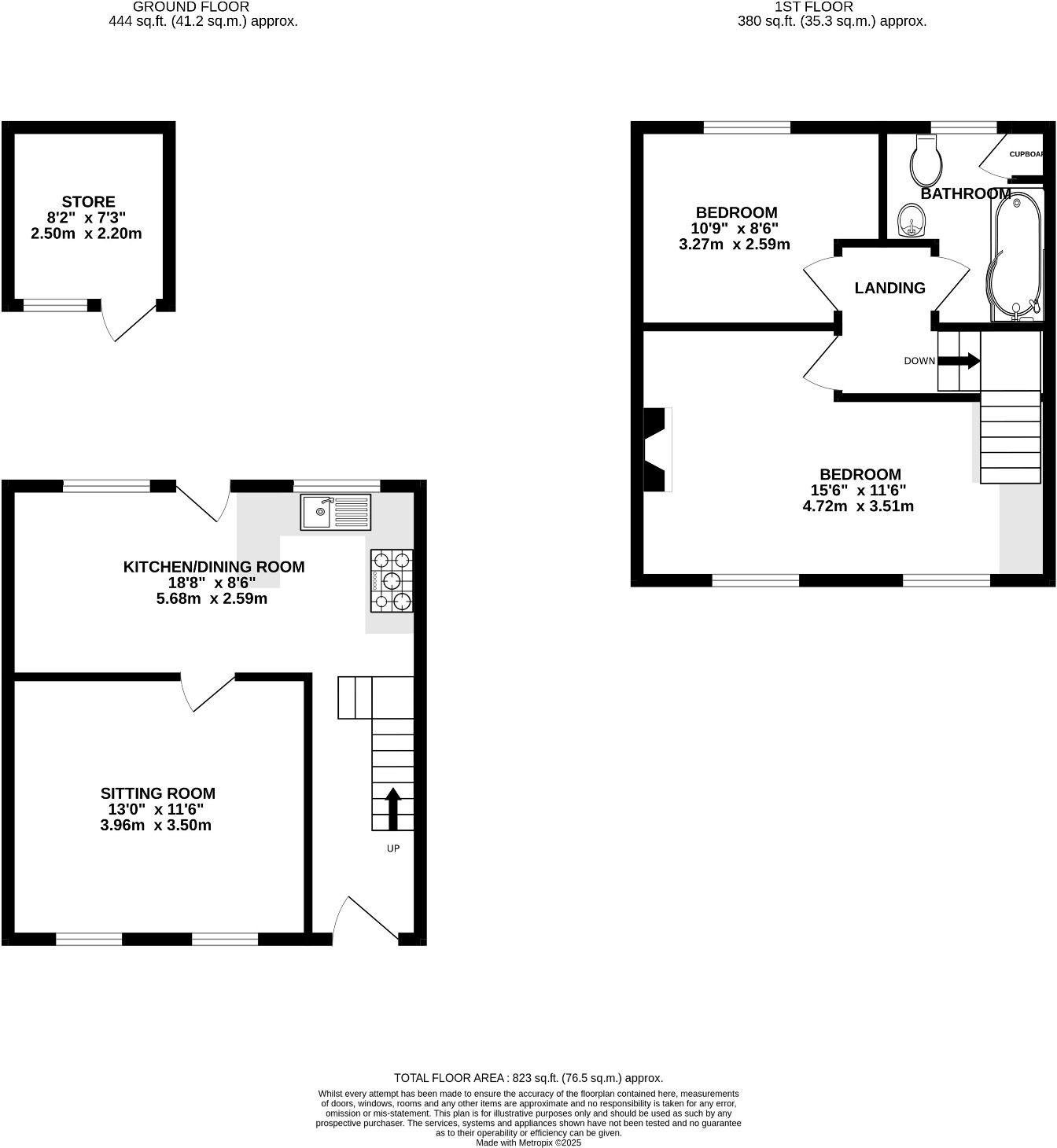
This well-presented red-brick cottage sits on a quiet no-through road a short walk from the River Waveney and Beccles Quay. The ground floor flows from a sitting room with a multi-fuel burner into a spacious kitchen/dining room with direct access to a paved courtyard — an easy, low-maintenance outdoor space for summer entertaining.
Upstairs provides two double bedrooms and a bathroom with a P-shaped bath and dual shower heads. Practical features include fitted kitchen units, an integrated oven and hob, gas central heating, double-glazed sash windows to the front and useful built-in storage in the master bedroom. Off-street parking directly outside the property is a valuable town-centre convenience.
Buyers should note this is a probate sale and probate has not yet been granted; purchase timelines may therefore be extended. The plot is small and the house has an EPC rating of D. The immediate area records higher crime and socioeconomic deprivation than average — factors to weigh for buyers prioritising long-term resale or rental yield.
This property will suit first-time buyers or couples seeking a characterful town base close to river moorings, local shops and rail links. With tidy cosmetic updates or targeted improvements (kitchen, energy upgrades), the cottage offers immediate comfort and clear potential to add value.



































































