Practical garden living close to schools and Rayners Lane station.
- Three bedrooms and two reception rooms suitable for family living
- Conservatory and generous rear garden with large outbuilding
- Off-street parking on a paved driveway to the front
- Modern kitchen; double glazing installed after 2002
- Single family bathroom only; bedrooms are small-to-average
- Built 1930s with solid brick walls likely lacking insulation
- Area records above-average crime; consider security measures
- Freehold tenure; mains gas boiler and fast broadband available
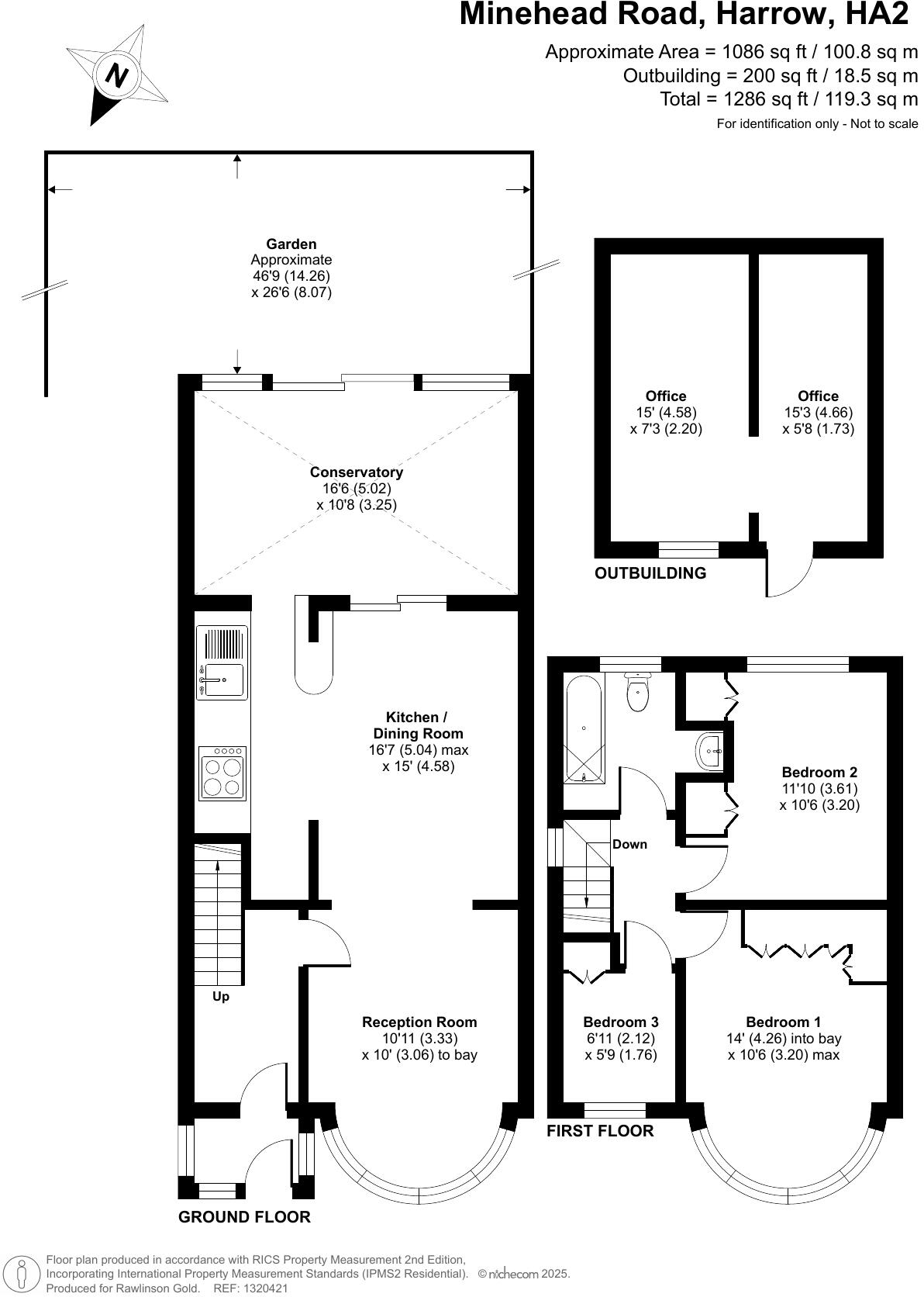
Set on Minehead Road in Harrow, this three-bedroom end-of-terrace offers comfortable family living with practical outdoor space. The house combines period bay-window character with a modern kitchen, conservatory and a generous rear garden — plus a large outbuilding that adds useful storage or hobby space.
Internally there are two reception rooms and a single family bathroom, making the layout straightforward for family life. Double glazing was installed after 2002 and mains gas central heating provides reliable warmth. Off-street parking to the front and good local transport links, including Rayners Lane station nearby, add everyday convenience.
Buyers should note some material drawbacks: the property dates from the 1930s and external walls are likely uninsulated, so upgrading insulation could improve comfort and running costs. There is only one bathroom and bedroom sizes are small-to-average, so the house may suit a young family or those seeking a practical home rather than a large family wanting generous rooms. The area records above-average crime rates, which should be considered alongside local amenities and schools.
Overall, this freehold terrace is a sensible purchase for buyers prioritising location, outdoor space and scope to improve energy performance and internal layout over time.
3 bedroom end of terrace house for sale in Ravenswood Crescent, Harrow, Middlesex, HA2 — £600,000 • 3 bed • 1 bath • 1338 ft²
3 bedroom end of terrace house for sale in Exeter Road, Harrow, HA2 — £575,000 • 3 bed • 1 bath • 1148 ft²
3 bedroom terraced house for sale in Torbay Road, Harrow, HA2 — £540,000 • 3 bed • 1 bath • 818 ft²
3 bedroom end of terrace house for sale in Drake Road, Harrow, Middlesex, HA2 — £640,000 • 3 bed • 1 bath • 1284 ft²
3 bedroom semi-detached house for sale in Harrow, HA3 — £500,000 • 3 bed • 2 bath • 786 ft²
3 bedroom semi-detached house for sale in Walton Drive, Harrow, HA1 — £775,000 • 3 bed • 3 bath • 1398 ft²


































































































