Ideal starter property close to stations and good schools.
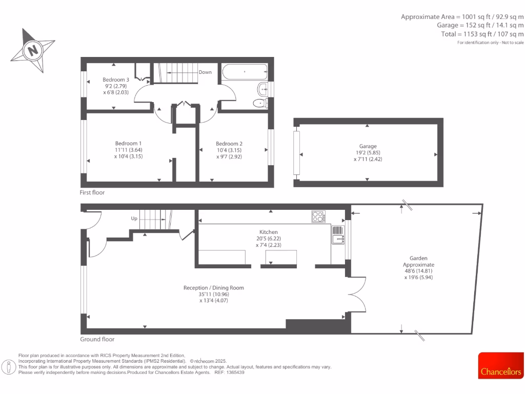
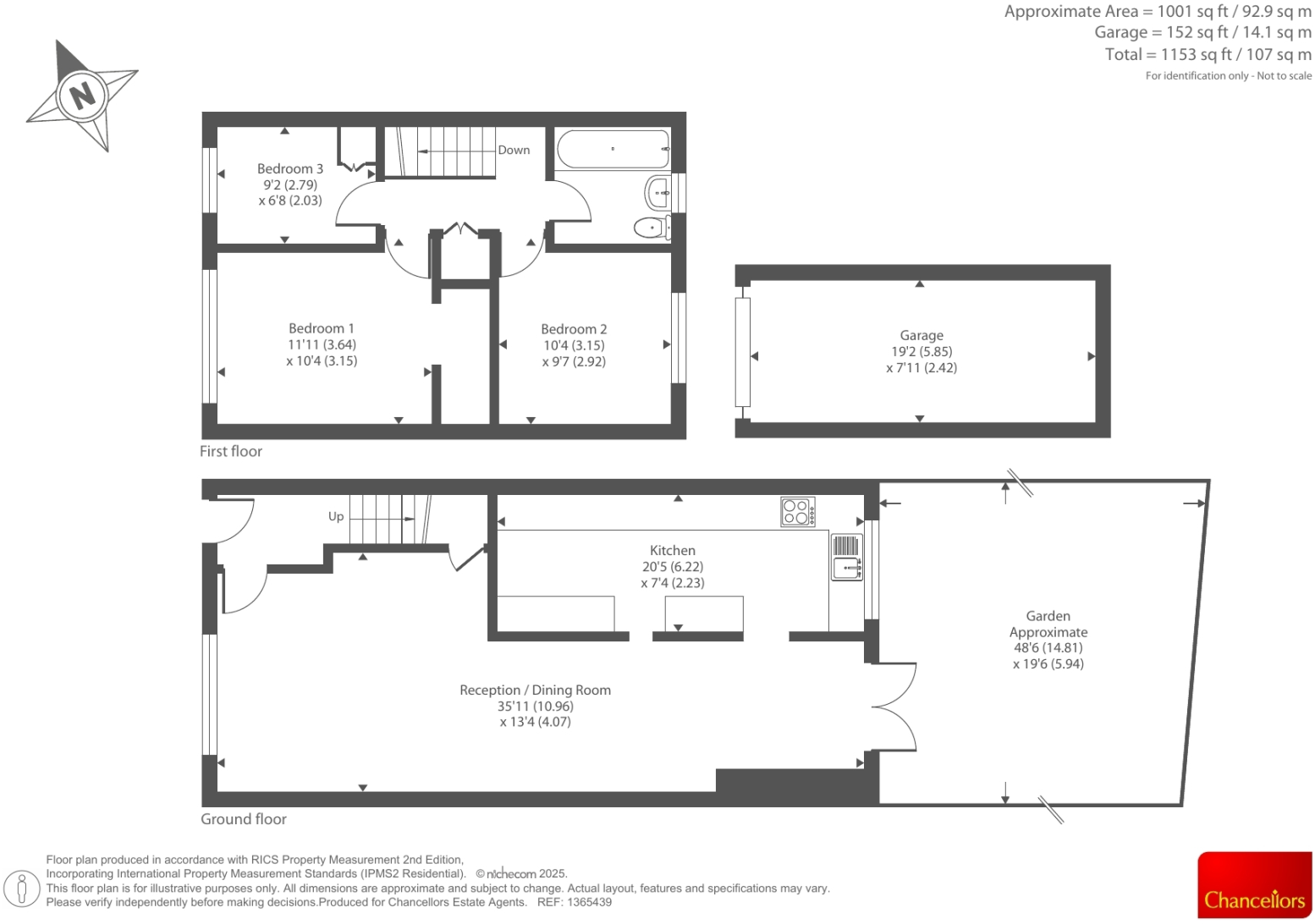
Chain-free three-bedroom terraced house, extended to the rear
EPC C and mains gas boiler with radiators
Private rear garden; small plot size
Garage in block provides off-street parking option
Single bathroom only; may be tight for families
Post‑war build (1950–66); likely scope for modernisation
Cavity walls assumed uninsulated — potential retrofit needed
Excellent broadband and mobile signal; good commuter links
This chain-free, three-bedroom terraced house on Bingley Road offers a practical, affordable entry into Sunbury-on-Thames. Extended to the rear, the home provides sensible living space across two storeys and benefits from an EPC rating of C and mains gas heating, helping keep running costs reasonable.
Situated close to local shops, parks and several well-regarded primary schools, the location suits first-time buyers or young families who need good transport links. Sunbury and Upper Halliford stations are within easy reach and major roads (M3, A316) are accessible for commuters. High-speed broadband and excellent mobile signal support home working.
The property has genuine scope for improvement and personalisation — ideal for someone wanting to add value. Practical features include a private rear garden and a garage in a nearby block for off-street parking. The terrace is of post‑war construction (1950–66) with double glazing, though the install date is unknown.
Notable points to consider: the house has a single bathroom and a relatively small plot, and cavity walls were built without insulation (assumed), so buyers should expect potential retrofit work to improve thermal performance. Overall crime and local deprivation levels are average, and council tax is moderate. Viewing is recommended to judge the space and the upgrade potential in person.
3 bedroom end of terrace house for sale in Sunbury-On-Thames, Middlesex, TW16 — £425,000 • 3 bed • 1 bath • 873 ft²
3 bedroom terraced house for sale in Mill Farm Avenue, Sunbury-on-Thames, TW16 — £425,000 • 3 bed • 1 bath • 765 ft²
3 bedroom terraced house for sale in Mill Farm Avenue, Sunbury-on-Thames, Surrey, TW16 — £447,500 • 3 bed • 1 bath • 963 ft²
3 bedroom end of terrace house for sale in Sunbury-on-Thames, Surrey, TW16 — £500,000 • 3 bed • 1 bath • 1137 ft²
3 bedroom terraced house for sale in Laytons Lane, Sunbury-on-Thames, Surrey, TW16 — £499,950 • 3 bed • 1 bath • 995 ft²
3 bedroom terraced house for sale in Fairlawns, Sunbury-On-Thames, TW16 — £500,000 • 3 bed • 1 bath • 820 ft²


















































































