**Highlighted Features:**
- Attractive two-bedroom Victorian Apostle House
- Beautifully presented throughout with charming period features
- Rear extension with open plan kitchen/dining/family room
- Mature, low-maintenance rear garden
- Close proximity to Raynes Park and Wimbledon Chase Stations (0.6 miles)
- Excellent loft extension potential (subject to planning permission)
- EPC Rating: C | Council Tax Band: D
- Located in a highly qualified and affluent area
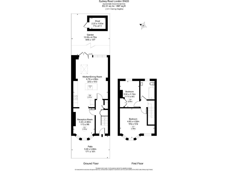
Nestled in a desirable area of Raynes Park, this beautifully maintained two double bedroom Victorian Apostle House offers an inviting blend of charm and modern living. The property showcases a welcoming front reception that seamlessly flows into an impressive open plan kitchen/dining/family room, designed for both entertaining and family comfort. Double doors provide a seamless transition to the mature garden, perfect for relaxing or weekend gatherings. The first floor features two generous bedrooms and a fitted family bathroom, ideal for families or professionals looking for space.
With the added convenience of being just a short distance from local stations and top-rated schools such as Joseph Hood Primary and Rutlish School, this home is positioned in a highly sought-after area. Notably, there’s excellent potential to extend into the loft space, opening doors to future renovations or expansion.
While the property is in a fantastic condition, it retains the inherent character of a classic Victorian home, making it a unique find in today’s market. Don't miss out on this opportunity to invest in a delightful home in a vibrant community, with the potential for further personalization—this may not last long!
2 bedroom terraced house for sale in Vernon Avenue, Raynes Park, SW20 — £800,000 • 2 bed • 1 bath • 930 ft²
4 bedroom terraced house for sale in Sydney Road, London, SW20 — £1,000,000 • 4 bed • 2 bath • 1242 ft²
3 bedroom terraced house for sale in Edna Road, London, SW20 — £775,000 • 3 bed • 2 bath • 1138 ft²
3 bedroom end of terrace house for sale in Sydney Road, Raynes Park, SW20 — £835,000 • 3 bed • 2 bath • 1076 ft²
3 bedroom terraced house for sale in Gore Road, Raynes Park, SW20 — £725,000 • 3 bed • 1 bath • 681 ft²
3 bedroom terraced house for sale in Vernon Avenue, Raynes Park, SW20 — £975,000 • 3 bed • 2 bath • 1225 ft²


















































