Smart starter home near schools and shops, ready for immediate occupation or rental income.
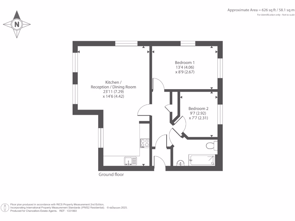
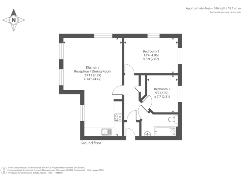
- Ground-floor two-bedroom apartment with open-plan living
- Allocated off-street parking included
- Long lease: 211 years from 01/01/2021 (≈207 years remaining)
- Contemporary kitchen, modern communal building, low maintenance
- One bathroom only; may limit families or sharers
- Close to shops, bus routes and several good schools
- Fast broadband and excellent mobile signal
- Average-sized rooms; average local crime levels
This bright ground-floor two-bedroom apartment in Berryfields offers straightforward, modern living in an established development. The open-plan living and contemporary kitchen create a practical space for everyday life and for entertaining. Allocated off-street parking and fast broadband/mobiles add everyday convenience.
The property sits close to shops, bus links and several well-rated schools, making it a sensible pick for first-time buyers and buy-to-let investors. The lease is long (211 years from 2021, c.207 years remaining), so lease length is not a short-term concern. Heating is by a mains-gas boiler and radiators; no flooding risk is recorded.
The flat is an average-sized ground-floor home with one bathroom — suitable for small households but may feel tight for growing families. The neighbourhood is described as achieving and affluent, with average local crime levels; buyers should consider ground-floor privacy and security preferences.
Overall this is a low-maintenance, well-located starter home or rental unit with clear investment appeal. The apartment is best for purchasers seeking a modern, convenient property without major renovation needs, though limited living space and a single bathroom should be balanced against needs.
2 bedroom flat for sale in The Warren, Berryfields, Aylesbury, HP18 — £195,000 • 2 bed • 1 bath • 582 ft²
2 bedroom flat for sale in Elton Close, Aylesbury, Buckinghamshire, HP18 — £179,995 • 2 bed • 1 bath • 599 ft²
2 bedroom apartment for sale in Elton Close, Aylesbury, HP18 — £210,000 • 2 bed • 2 bath • 598 ft²
2 bedroom apartment for sale in Elton Close, Aylesbury, HP18 — £210,000 • 2 bed • 2 bath • 602 ft²
2 bedroom apartment for sale in Alma Street, Aylesbury, HP18 — £210,000 • 2 bed • 2 bath • 807 ft²
2 bedroom flat for sale in Upende, Aylesbury, HP18 — £210,000 • 2 bed • 1 bath • 570 ft²


















































































