Chain-free two-bedroom with garage and long lease near station and schools.
Chain-free ground floor apartment with immediate vacant possession
Share of freehold with c.948 years remaining, zero ground rent
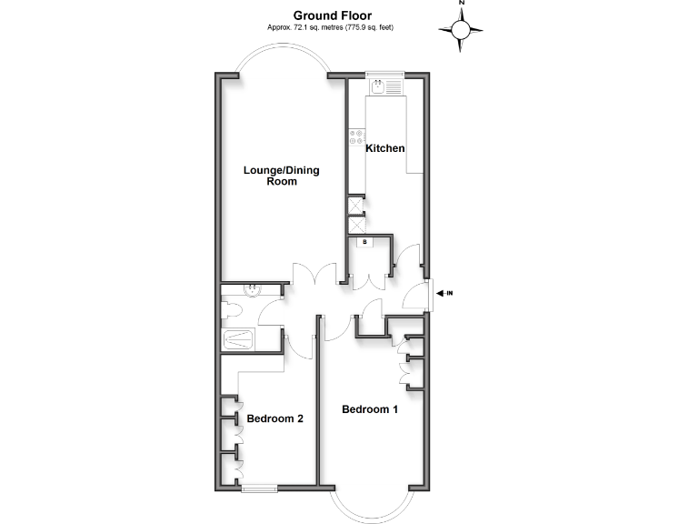
About 688 sq ft: two bedrooms, large lounge/diner, fitted kitchen
Garage included in nearby block and permit parking available
0.2 miles to Emerson Park station — strong commuter location
Average service charge c.£2,200 per year; buyers should confirm details
Above-average council tax band — factor into running costs
Communal gardens maintained but some landscaping requires attention
This chain-free ground-floor apartment in Buckingham Close offers a long lease, zero ground rent and a share of the freehold — rare ownership security for its price bracket. The layout provides two double bedrooms, a generous lounge/diner and a garage nearby, making it practical for first-time buyers or downsizers wanting easy access to transport and local amenities.
Positioned about 0.2 miles from Emerson Park station and close to well-regarded primary and secondary schools, the location is a strong commuter and family asset. The building benefits from double glazing and gas central heating; the flat totals about 688 sq ft and sits within well-maintained communal grounds.
Buyers should note the property incurs an average service charge of around £2,200 and attracts above-average council tax. The communal landscaping will need ongoing upkeep and some areas are described as requiring attention. Measurements are approximate and buyers must verify fixtures, fittings and any services prior to exchange.
Overall this apartment delivers straightforward, low-risk ownership with long leasehold security, immediate move-in potential and clear commuter convenience. It suits buyers seeking a practical two-bedroom home with parking and good schools nearby, while accepting the ongoing service charge and council tax obligations.
2 bedroom ground floor flat for sale in Buckingham Close, Emerson Park, Essex, RM11 — £247,500 • 2 bed • 1 bath • 688 ft²
2 bedroom flat for sale in Parkstone Avenue, Hornchurch, RM11 — £375,000 • 2 bed • 1 bath • 998 ft²
2 bedroom apartment for sale in The Woodfines, Hornchurch, Essex, RM11 — £425,000 • 2 bed • 1 bath
2 bedroom apartment for sale in Seymour Place, North Street, Hornchurch, RM11 — £300,000 • 2 bed • 2 bath • 556 ft²
2 bedroom flat for sale in Ridgemont Place, Parkstone Avenue, Hornchurch, RM11 — £475,000 • 2 bed • 2 bath • 896 ft²
2 bedroom flat for sale in Tilia Court, Berther Road, Emerson Park, Hornchurch, RM11 — £425,000 • 2 bed • 2 bath • 936 ft²


























































