Renovated three-bed period home with garden in sought-after Wateringbury village.
Three bedrooms across three floors, well-proportioned rooms
Newly renovated interior with modern kitchen and double glazing
Good-sized rear garden with patio, shed and mature planting
Single family bathroom only; three bedrooms share one bathroom
Freehold tenure, no flood risk, fast broadband and excellent mobile signal
Small plot and terrace position; limited outdoor space to expand
External cavity walls assumed uninsulated — may need insulation work
Located in sought-after Wateringbury with local amenities and walks
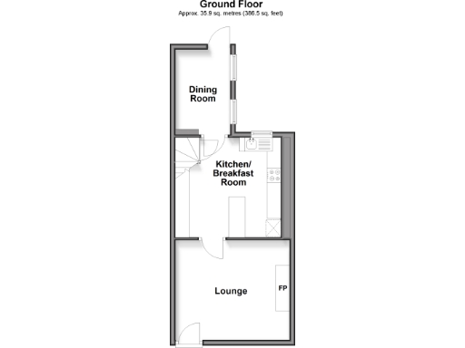
This three-bedroom end-of-terrace on Tonbridge Road blends period charm with a recently renovated interior. Set across three levels, the house offers a comfortable lounge, a modern kitchen/breakfast room with integrated appliances, and a good-sized rear garden ideal for children or outdoor relaxing. The property is freehold, has fast broadband and excellent mobile signal — useful for home working or streaming.
The house has clear strengths for a family or first-time buyer: well-proportioned bedrooms, a separate dining room, and modern double glazing and heating. The village location in Wateringbury places local shops, a post office, bus links and country walks close by, while a mix of nearby schools (including an Outstanding primary) supports family life.
Buyers should note practical details factually. There is a single bathroom serving three bedrooms; the plot is small; and external walls are assumed to be uninsulated cavity walls, which may affect energy efficiency and future heating costs. Council tax is moderate. Although the property has been newly renovated, purchasers must verify fixtures, fittings and any historic planning consents if alterations were made.
Overall this is a well-presented period home in a very affluent, low-crime area that will suit families and first-time buyers seeking a ready-to-live-in house with scope to tailor energy performance and finishes over time.
2 bedroom end of terrace house for sale in Old Road, Wateringbury, Maidstone, ME18 — £350,000 • 2 bed • 1 bath • 700 ft²
3 bedroom terraced house for sale in Tonbridge Road, Wateringbury, Maidstone, ME18 — £375,000 • 3 bed • 1 bath • 979 ft²
3 bedroom terraced house for sale in Waterside Mews, Wateringbury, Maidstone, ME18 — £350,000 • 3 bed • 1 bath • 808 ft²
2 bedroom terraced house for sale in Old Road, Wateringbury, Maidstone, ME18 — £350,000 • 2 bed • 1 bath • 711 ft²
3 bedroom detached house for sale in Tonbridge Road, Wateringbury, Maidstone, ME18 — £475,000 • 3 bed • 1 bath • 699 ft²
2 bedroom terraced house for sale in Old Road, Wateringbury, Kent, ME18 — £290,000 • 2 bed • 1 bath • 571 ft²










































































