Low-maintenance single-storey living with strong new-build warranty and purchase support.
Two-bedroom detached new-build bungalow in a quiet cul-de-sac
High-spec kitchen with integrated fridge/freezer and induction hob
Luxury bath/shower room; LVT flooring in living areas
10-year new-build warranty and high insulation levels
Off-street parking and low-maintenance garden included
Developer will contribute 5% deposit and pay stamp duty (single home)
Compact 634 sq ft layout with only one bathroom
Off-plan sale completing Nov/Dec 2025; area shows above-average crime
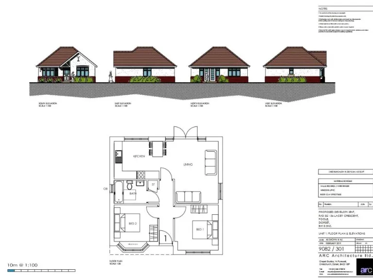
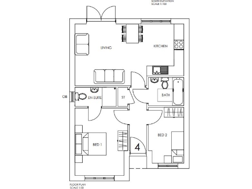
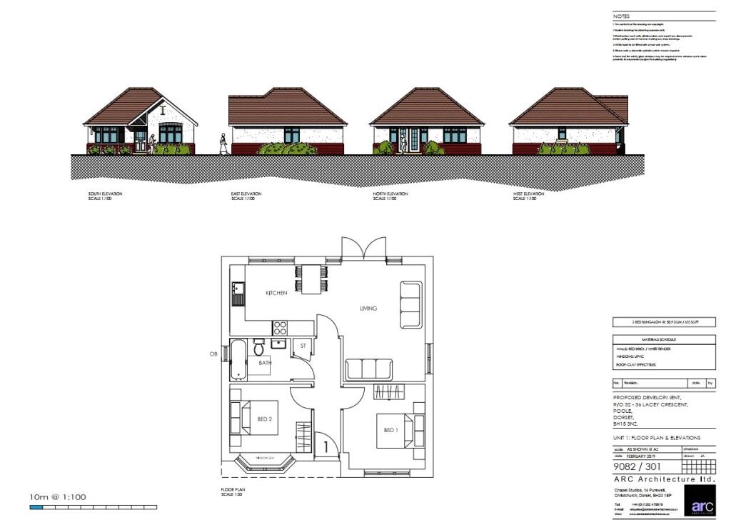
This two-bedroom new-build bungalow in a quiet cul-de-sac in Parkstone delivers single-storey living with contemporary finishes and a low-maintenance plot. Completion is scheduled for November/December 2025, and each home is covered by a 10-year warranty and high insulation for energy efficiency.
Interiors include a high-quality fitted kitchen with integrated fridge/freezer, dishwasher, induction hob and oven, luxury bath/shower room, LVT flooring in hall and living areas and carpeted bedrooms. The layout is compact and efficient across approximately 634 sq ft, suited to buyers wanting straightforward, level-living without extensive maintenance.
Practical extras include an off-street parking space, gas central heating and a modest garden with landscaping. The developer offers Help to Buy-style assistance for mortgage buyers — a 5% deposit contribution and payment of stamp duty on a single home purchase — making this attractive to buyers seeking a lower upfront cost.
Buyers should note this is an off-plan purchase with completion late 2025. The property is average in size with a single bathroom, and the area records above-average local crime levels. Council tax band is not yet confirmed. These are material facts to weigh alongside the new-build warranty and specification.
2 bedroom bungalow for sale in Lacey Crescent, Parkstone, Poole, Dorset, BH15 — £350,000 • 2 bed • 1 bath • 1493 ft²
2 bedroom bungalow for sale in Blandford Road, Poole, BH15 — £385,000 • 2 bed • 1 bath
2 bedroom chalet for sale in High Howe Lane, Bearwood , BH11 — £375,000 • 2 bed • 1 bath • 1524 ft²
2 bedroom bungalow for sale in Hamble Road, Poole, Dorset, BH15 — £350,000 • 2 bed • 1 bath • 604 ft²
2 bedroom detached bungalow for sale in Wick Lane,
Christchurch,
Dorset,
BH6 4LE, BH6 — £400,000 • 2 bed • 2 bath • 840 ft²
2 bedroom detached bungalow for sale in Blandford Road,
Poole,
Dorset,
BH16 6AB, BH16 — £205,000 • 2 bed • 1 bath • 560 ft²






















































































