Woodland family home with income-producing log cabin and large south-facing garden..
- 0.58 acre south-facing plot set in Eggesford Forest
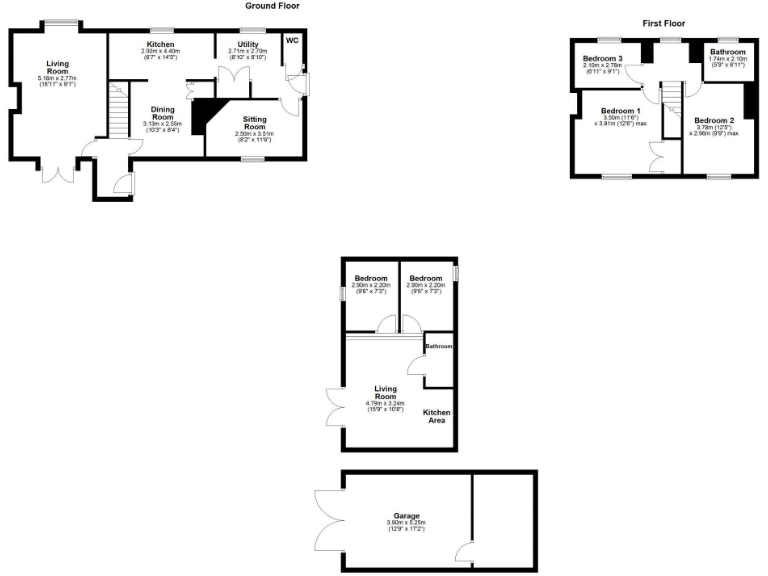
- Main house: 4 bedrooms, 2 reception rooms, 1 bathroom
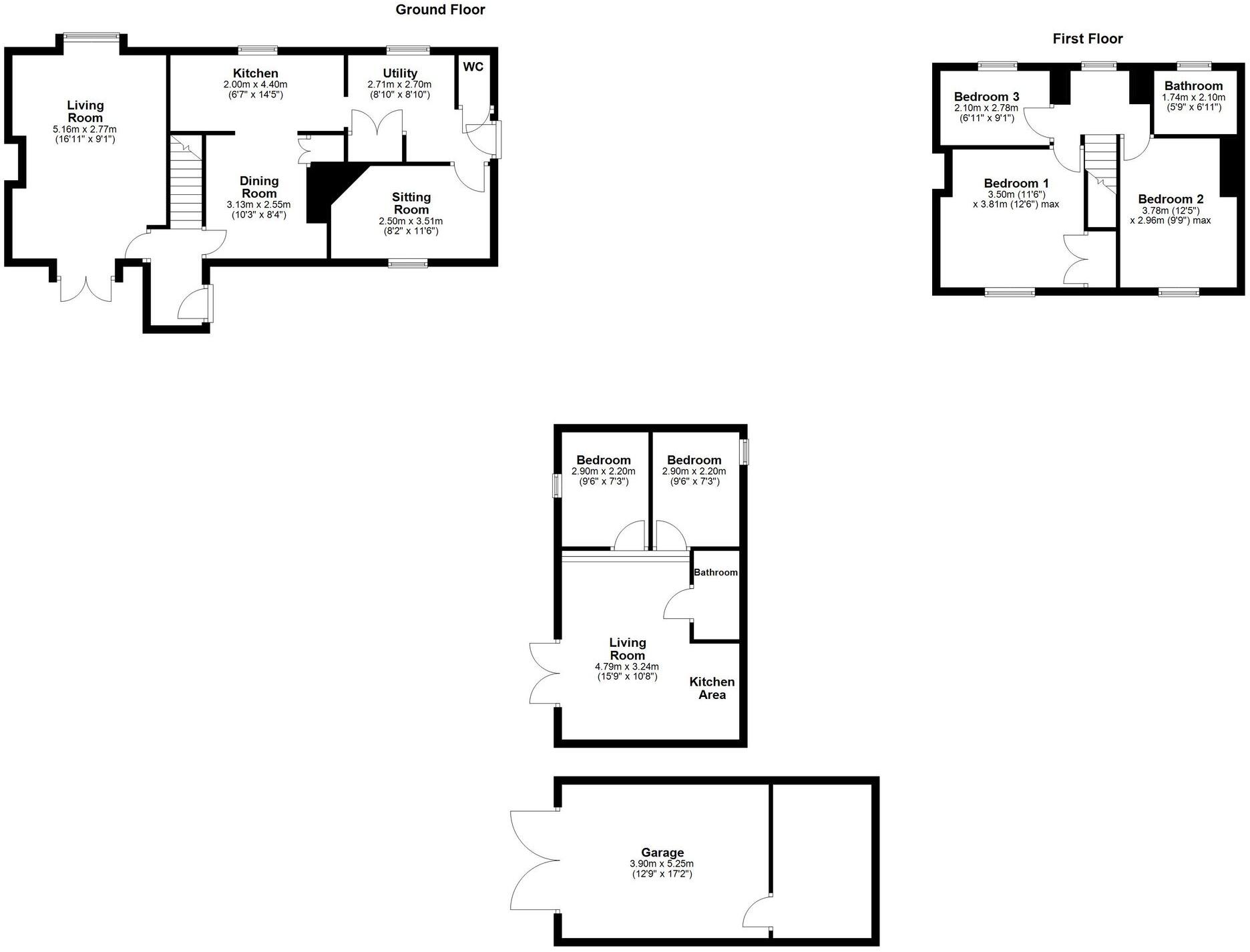
- Separate 2-bed log cabin with existing short-term rental income
- Eco upgrades: solar panels and air source heat pump
- Garage, workshop and plentiful off-street parking
- EPC rating F; energy performance requires improvement
- Broadband very slow; mobile signal excellent
- Private shared drainage; main heating uses bottled LPG
Set deep in Eggesford Forest, this former forestry worker’s cottage sits on a substantial 0.58-acre plot with a large south-facing garden and private woodland views. The main semi-detached house offers four bedrooms, two reception rooms, original first-floor floorboards, and two woodburning stoves for cosy heating. Practical eco upgrades include solar panels and an air source heat pump, while mains electric, water and a shared private drainage serve the site.
A separate two-bedroom log cabin with decking is configured as a self-contained let and currently runs successfully on short-term rental, providing useful additional income or a guest suite. Parking is generous with a garage, workshop and room for multiple vehicles. Eggesford station is under a mile away, making village life unusually well connected for this rural setting.
Buyers should note material drawbacks: the property has an EPC rating of F, heating uses bottled LPG alongside the heat pump, broadband speeds in the postcode are very slow, and drainage is private and shared with the neighbour. There is only one bathroom in the main house. The house is offered chain free, giving flexibility on moving plans.
This home fits buyers seeking a woodland lifestyle, families wanting space and character, or investors wanting a running holiday let alongside a main residence. The plot and outbuildings present clear scope to improve energy performance and add value with targeted upgrades.
3 bedroom detached bungalow for sale in Lapford, Crediton, EX17 — £375,000 • 3 bed • 1 bath • 980 ft²
4 bedroom house for sale in Webbery, Bideford, Devon, EX39 — £1,895,000 • 4 bed • 1 bath • 1914 ft²
2 bedroom detached house for sale in Forest Park Lodges, High Bickington, Umberleigh, EX37 — £102,500 • 2 bed • 2 bath • 797 ft²
4 bedroom detached house for sale in Kingford, Umberleigh, Devon, EX37 — £700,000 • 4 bed • 2 bath • 1904 ft²
5 bedroom detached house for sale in The Croft & Holiday Lodges, Mockham Down, EX32 — £1,350,000 • 5 bed • 3 bath • 2455 ft²
3 bedroom semi-detached house for sale in Dunchideock, Exeter, EX6 — £540,000 • 3 bed • 1 bath • 1183 ft²






























































































































































