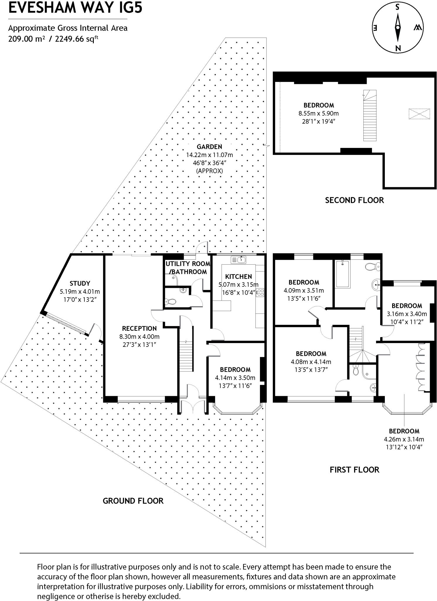
2250 sqft semi with parking for 3–4, ideal for growing families and flexible use.
Large open-plan living and dining area, ideal for family gatherings
This substantial 5–6 bedroom semi-detached home offers 2,250 sqft of flexible living across multiple floors, with a large open-plan living/dining area and a loft conversion providing extra bedroom or home-office space. Driveway parking for 3–4 cars and a decent rear garden make it practical for family life and weekend entertaining.
Set in a well-connected Ilford street, the property sits near good primary and secondary schools and benefits from fast broadband and excellent mobile signal — useful for home working and teenage connectivity. Transport links into central London are straightforward, adding appeal for commuters.
The house is freehold and chain-free, offered occupied. Construction dates indicate early 20th-century solid-brick walls; double glazing is fitted, but wall insulation is assumed absent and could be upgraded to improve energy efficiency. The EPC is band D and the property is served by mains gas central heating.
This home suits growing families needing space and investors seeking a high-yield rental layout. It presents immediate lived-in comfort with clear scope for energy-efficiency improvements and cosmetic updating to maximise long-term value.
6 bedroom semi-detached house for sale in Merton Road, Ilford, IG3 — £725,000 • 6 bed • 2 bath • 1804 ft²
6 bedroom semi-detached house for sale in Redcliffe Gardens, Ilford, IG1 — £1,000,000 • 6 bed • 6 bath • 3478 ft²
3 bedroom terraced house for sale in Evesham Way, Ilford, IG5 — £500,000 • 3 bed • 1 bath • 1016 ft²
5 bedroom terraced house for sale in Henley Road, Ilford, IG1 — £575,000 • 5 bed • 2 bath • 1163 ft²
4 bedroom semi-detached house for sale in Carriage Mews, Ilford, IG1 — £525,000 • 4 bed • 1 bath • 1127 ft²
4 bedroom semi-detached house for sale in Coventry Road, Ilford, IG1 — £750,000 • 4 bed • 2 bath • 1905 ft²


































































































