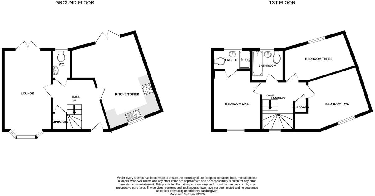
**Standout Features:**
- Modern mid-terrace home with three bedrooms
- Master bedroom with en-suite bathroom
- Open-plan kitchen/diner and separate lounge
- Downstairs WC and storage cupboards
- Garage and off-road parking
- Close to Queen Elizabeth Hospital and amenities
- No onward chain
**Concerns:**
- Average-sized property may not suit larger families
- Local primary school ratings vary, with some indicating inadequate performance
This beautifully presented three-bedroom terraced home in the King's Reach development is perfect for families seeking a blend of comfort and convenience. With a master bedroom boasting an en-suite, this residence features generous living spaces, including a bright kitchen/diner and a cozy lounge, ideal for family gatherings. The property is chain-free, allowing for quick occupancy, and includes a garage and off-road parking—valuable assets in a suburban setting.
Located near the Queen Elizabeth Hospital, this home offers easy access to essential amenities, making it a great choice for both families and professionals. While the surrounding schools have mixed ratings, the home's proximity to King’s Lynn town center ensures you'll have everything you need within reach. With the potential for customization and no significant maintenance issues noted, seize the opportunity to make this comfortable modern home your own—a perfect mix of convenience and charm awaits!
3 bedroom end of terrace house for sale in Montgomery Way, King's Lynn, PE30 — £230,000 • 3 bed • 1 bath
3 bedroom semi-detached house for sale in Bader Close, King's Lynn, PE30 — £200,000 • 3 bed • 1 bath • 700 ft²
3 bedroom semi-detached house for sale in Admirals Close, King's Lynn, PE30 — £229,995 • 3 bed • 2 bath • 910 ft²
3 bedroom end of terrace house for sale in Adam Close, King's Lynn, PE30 — £245,000 • 3 bed • 1 bath
3 bedroom semi-detached house for sale in Bure Close, King's Lynn, Norfolk, PE30 — £290,000 • 3 bed • 2 bath • 1406 ft²
2 bedroom terraced house for sale in Winter Nelis Way, King's Lynn, Norfolk, PE30 — £210,000 • 2 bed • 2 bath • 708 ft²






































































