Contemporary three-bed with garden and allocated parking in Alphington.
- Modern 2022 build with EPC A rating
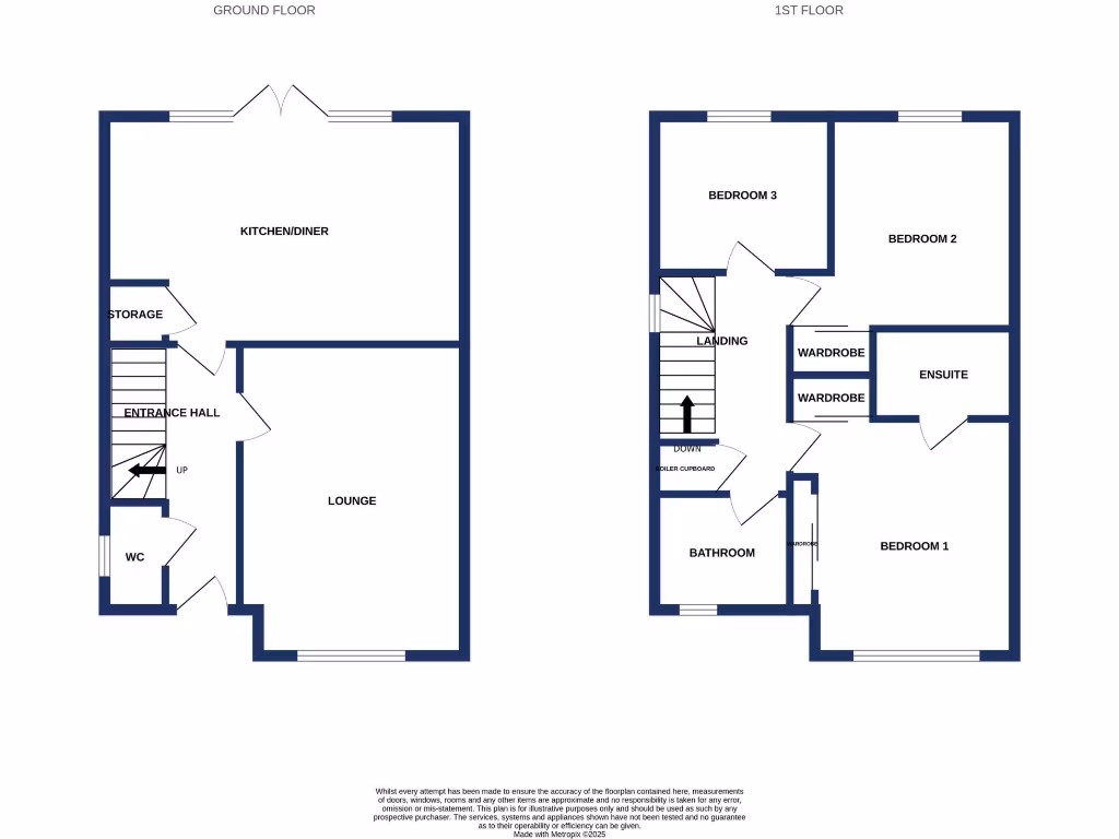
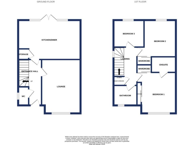
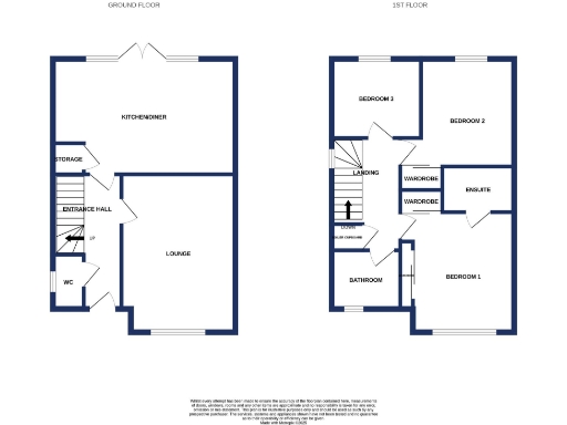
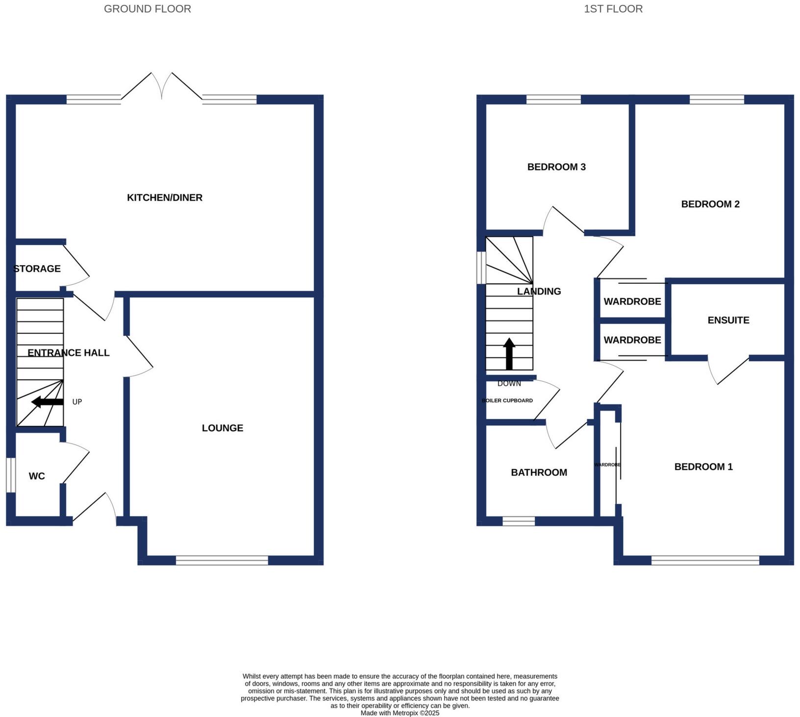
- Three bedrooms, principal with ensuite
- Open-plan kitchen/diner and ground-floor WC
- Enclosed rear garden and two allocated parking spaces
- Compact overall size: approx 697 sq ft
- Estate management charge currently TBC
- Fast broadband and excellent mobile signal
- Freehold with no onward chain
A bright, recently built three-bedroom semi-detached house set on the popular St Michaels Meadow development in Alphington. Constructed in 2022, the property offers modern fixtures, an A-rated EPC and a practical layout that suits families wanting move-in-ready accommodation. The open kitchen/diner and ground-floor WC add everyday convenience while an ensuite complements the principal bedroom.
Externally there is an enclosed rear garden with pedestrian gate to two allocated off-street parking spaces, plus a small front garden. Fast broadband and excellent mobile signal support home working and streaming. The local area is described as largely self-sufficient for retirees and ageing urban communities, with nearby primary and secondary schools rated Good.
At about 697 sq ft the house is compact for three bedrooms; room sizes are moderate and the overall footprint is small, so buyers seeking very large living areas should note the limited internal space. Estate management charges are listed as TBC — prospective purchasers should check any communal or development service costs. Crime is around local average and there is no flooding risk.
This freehold, no-onward-chain home will suit first-time buyers upsizing to family life or those wanting a low-maintenance modern property close to city amenities. It presents a straightforward option for buyers prioritising a contemporary finish, good energy efficiency and practical parking over expansive room proportions.
3 bedroom semi-detached house for sale in Chudleigh Road,
Alphington,
Exeter,
EX2 8TS, EX2 — £390,000 • 3 bed • 1 bath • 780 ft²
3 bedroom semi-detached house for sale in Finch Close, Exeter, EX2 — £300,000 • 3 bed • 2 bath • 551 ft²
3 bedroom semi-detached house for sale in Loveridge Drive, Alphington, EX2 — £300,000 • 3 bed • 2 bath • 592 ft²
3 bedroom semi-detached house for sale in Shillingford Road, Alphington,
Exeter,
EX2 8UB
, EX2 — £305,000 • 3 bed • 1 bath • 687 ft²
3 bedroom detached house for sale in Chudleigh Road,
Alphington,
Exeter,
EX2 8TS, EX2 — £500,000 • 3 bed • 1 bath • 1335 ft²
3 bedroom semi-detached house for sale in Denarius Road, Exeter, EX1 — £335,000 • 3 bed • 2 bath • 1001 ft²


















































































