Rare 1.35-acre plot with planning for c.6,000 sq ft and built garage annexe..
1. 1.35-acre private plot overlooking the village green
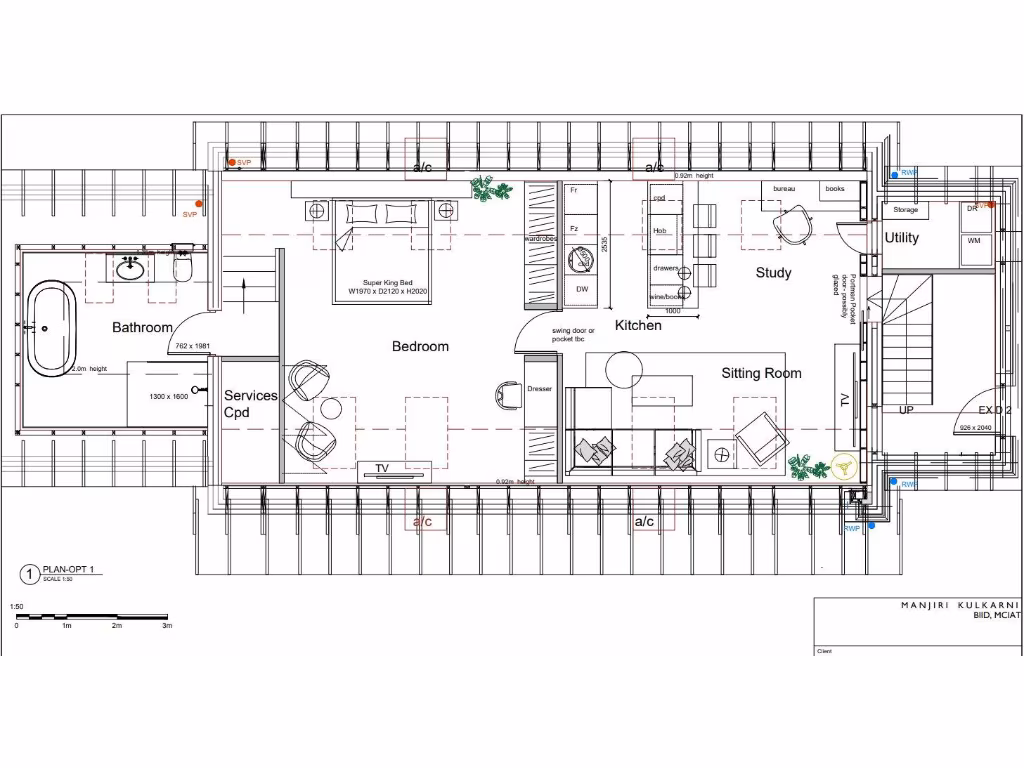
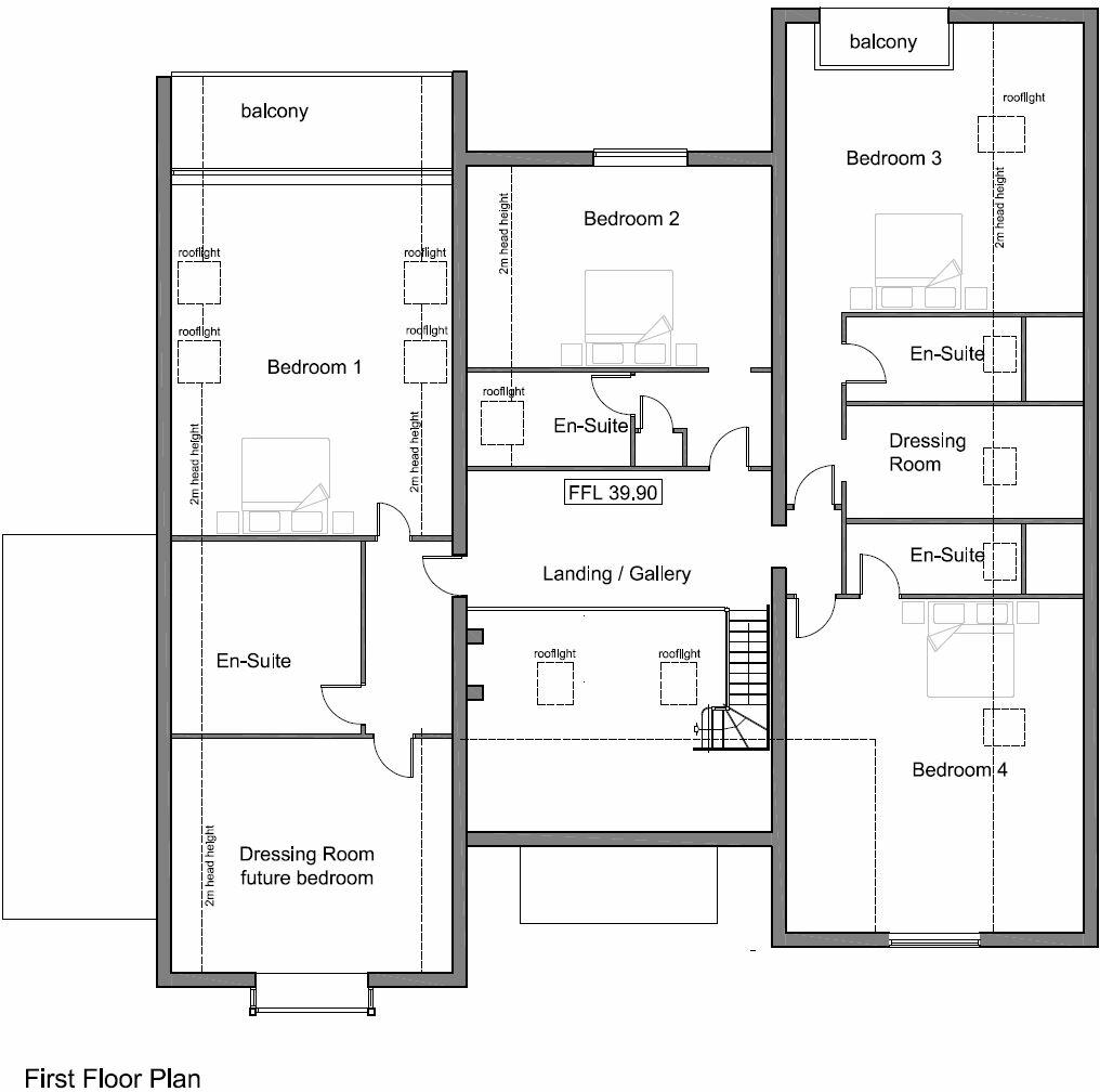
A rare 1.35-acre self-build plot in sought-after Moulton with planning permission for a substantial modern home of about 6,000 sq ft (West Suffolk Council ref. DC/18/1865/FUL). The separate four-bay garage with a self-contained annexe above has already been constructed, leaving purchasers scope to complete the main house to their own specification and create a highly energy-efficient country residence.
The site overlooks the village green in a prosperous, low-crime rural setting with excellent primary schooling nearby. The plot offers privacy, long views and extensive landscaping potential for formal gardens, leisure spaces or outbuildings. The existing garage/annexe provides immediate utility and potential rental or guest accommodation once finished.
Practical considerations: this is a large-scale self-build requiring project management, finishing works and services connection. Broadband speeds are slow and flood risk is described as medium, which may affect insurance and drainage planning. Council tax and some utility details are not available and purchasers should verify services, build costs and compliance with the planning consent before exchange.
This opportunity suits buyers seeking a significant bespoke family home, an owner-builder wanting a high-quality finish, or an investor prepared to manage a complex project in a desirable Suffolk village location.
Land for sale in High Street, Long Melford, Sudbury, Suffolk, CO10 — £375,000 • 1 bed • 1 bath • 3500 ft²
Land for sale in School Lane, Aldreth, CB6 — £300,000 • 1 bed • 1 bath • 3200 ft²
Plot for sale in Whitecroft Drive, Saxon Street, Newmarket, CB8 — £400,000 • 1 bed • 1 bath • 3300 ft²
4 bedroom detached house for sale in Withersfield, Haverhill, Suffolk , CB9 — £300,000 • 4 bed • 1 bath • 1393 ft²
Plot for sale in High Street, Linton, Cambridgeshire, CB21 — £275,000 • 1 bed • 1 bath • 1600 ft²
3 bedroom detached house for sale in Moulton, Newmarket, CB8 — £550,000 • 3 bed • 2 bath • 1503 ft²






















































