Walkable to Apsley station with driveway and landscaped garden.
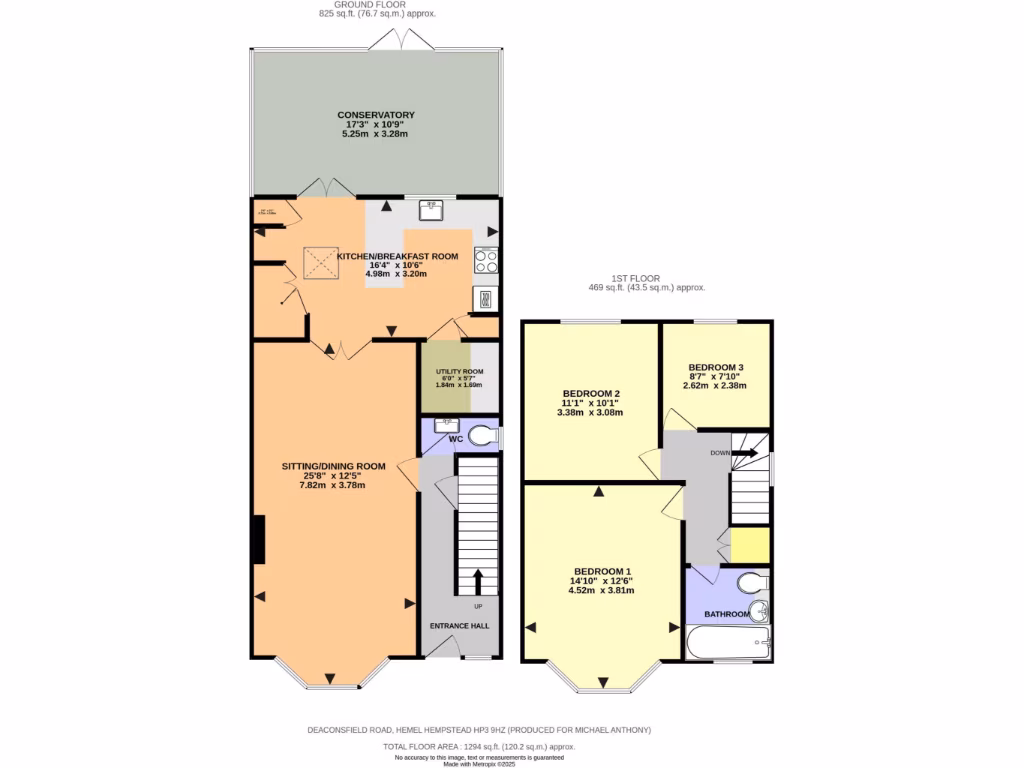
Three bedrooms with generous lounge/dining and conservatory
Fitted kitchen/breakfast room plus separate utility space
Driveway parking for multiple cars; off-street convenience
Landscaped, low-maintenance rear garden
Within walking distance of Apsley train station and town centre
Single family bathroom only; may not suit larger households
Solid brick 1930s construction; likely lacks wall insulation
Council tax band moderate; plot size small
Set in a popular Hemel Hempstead street, this extended semi-detached house offers a generous layout for family life. The bay-fronted lounge/dining room and attached conservatory create useful entertaining and play space, while the kitchen/breakfast room and utility serve everyday needs. A downstairs WC adds convenience for busy households.
Outside, the property benefits from driveway parking for multiple cars and a landscaped rear garden that’s easy to maintain. The home is within walking distance of Apsley train station and the town centre, with a range of good primary and secondary schools close by—practical for commuting families and school runs.
Built in the 1930s, the house is presented tastefully but retains period construction with solid brick walls. There is likely little wall insulation, and buyers should consider potential thermal upgrades and general updating over time. The property has one bathroom, which may be a constraint for larger families or those seeking more en‑suite convenience.
Overall this is a well-located, roomy family home offering immediate move-in comfort and clear potential to personalise. It will suit buyers who value transport links, outdoor space that’s low maintenance, and who are prepared to invest modestly in energy-efficiency improvements or cosmetic updates.
3 bedroom semi-detached house for sale in Marriotts Way, Corner Hall, Hemel Hempstead, Hertfordshire, HP3 — £550,000 • 3 bed • 2 bath • 1350 ft²
3 bedroom semi-detached house for sale in Boxted Road, Warners End, Hemel Hempstead, Hertfordshire, HP1 — £575,000 • 3 bed • 2 bath • 1235 ft²
3 bedroom semi-detached house for sale in Shendish Edge, Hemel Hempstead, HP3 — £475,000 • 3 bed • 1 bath • 918 ft²
3 bedroom semi-detached house for sale in Christchurch Road, Hemel Hempstead, HP2 — £539,000 • 3 bed • 1 bath • 1100 ft²
3 bedroom semi-detached house for sale in Adeyfield Road, Hemel Hempstead, HP2 — £575,000 • 3 bed • 1 bath • 1470 ft²
3 bedroom semi-detached house for sale in Cemetery Hill, Hemel Hempstead, HP1 — £450,000 • 3 bed • 1 bath • 892 ft²


































































