Three-bedroom village home with large sunny garden and countryside views, ideal for families..
Three generous bedrooms, good-sized principal rooms
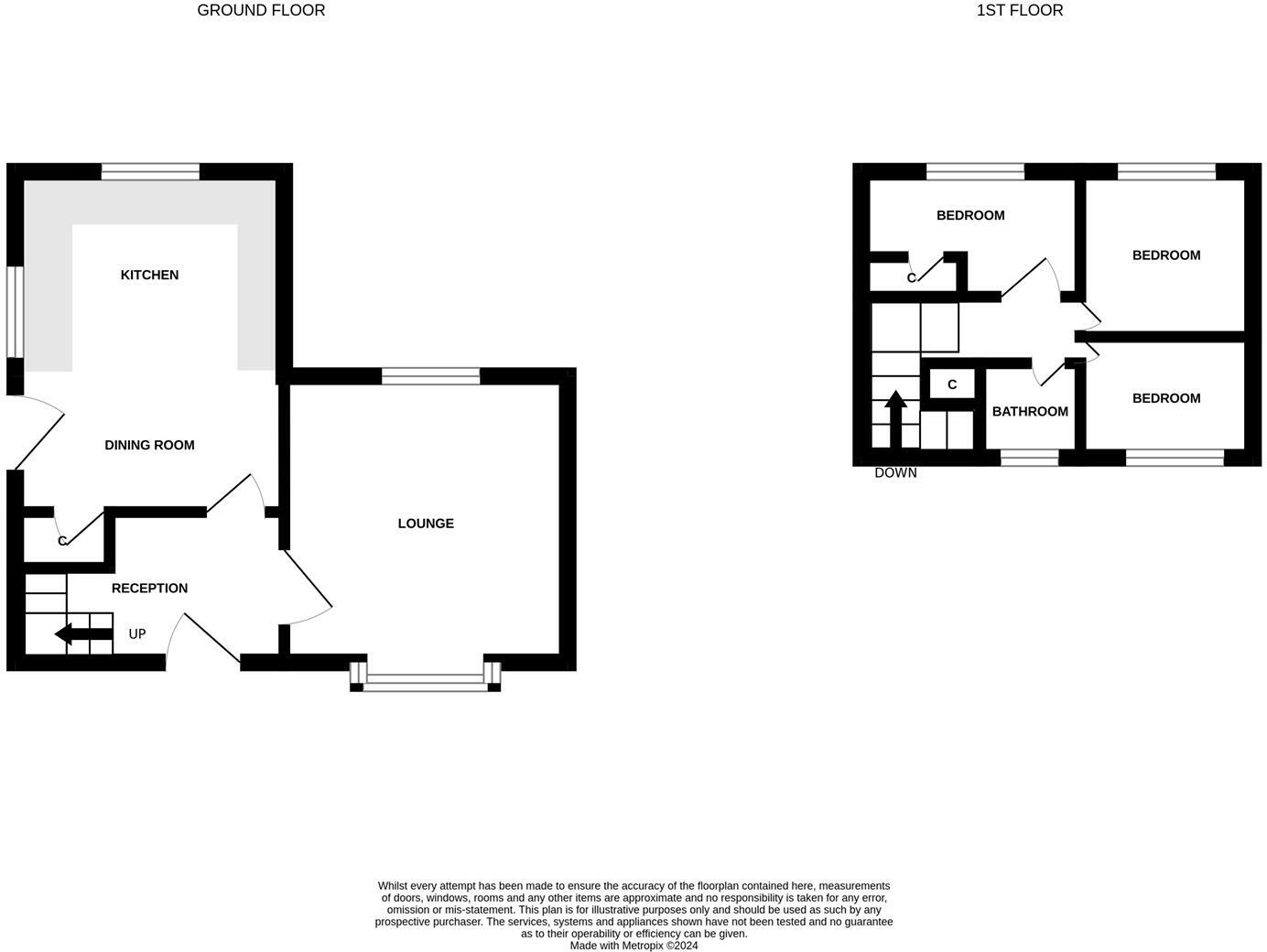
A mature, well-proportioned three-bedroom semi in Middleton One Row, this home suits families seeking village life with countryside views. The dual-aspect lounge centres on a log-burning stove and solid oak flooring, creating a warm, characterful reception space. The extended kitchen-diner fits a family table and includes plentiful cream units plus an included range cooker.
Outside, a generous, private rear garden enjoys open views across fields, two sheds, a bespoke dog run and an EV charging point — excellent for outdoor-loving households and electric vehicle owners. Off-street parking is provided by an imprinted concrete driveway to the front.
Practical benefits include gas central heating, double glazing and fast broadband with excellent mobile signal. Nearby schools, regular buses, Middleton St George amenities and good transport links to Darlington and Teesside add everyday convenience.
Notable points to consider: the house dates from the early 20th century with assumed solid brick walls and no built-in wall insulation; some upgrading or insulating work may be beneficial. There is a single family bathroom and local crime levels are reported above average, which may influence some buyers' decisions.
3 bedroom semi-detached house for sale in 27 Oak Tree Close, Middleton St. George, DL2 — £250,000 • 3 bed • 1 bath • 1281 ft²
3 bedroom terraced house for sale in Harpers Terrace, Middleton St. George, Darlington, DL2 — £130,000 • 3 bed • 1 bath • 752 ft²
3 bedroom detached house for sale in Wellington Drive, Middleton St. George, Darlington, DL2 — £235,000 • 3 bed • 2 bath • 862 ft²
2 bedroom semi-detached house for sale in Fairfax Road, Middleton St. George, Darlington, DL2 — £155,000 • 2 bed • 1 bath
3 bedroom semi-detached house for sale in The Greenway, Middleton St. George, Darlington, DL2 — £235,000 • 3 bed • 1 bath • 1097 ft²
3 bedroom terraced house for sale in The Front, Middleton One Row, DARLINGTON, DL2 — £450,000 • 3 bed • 2 bath • 1370 ft²










































































