ST11 9ND - 3 bedroom detached house for sale in Blythe Fields, Uttoxet…

View on Property Piper

3 bedroom detached house for sale in Blythe Fields, Uttoxeter Road, ST11

Summary - 404A UTTOXETER ROAD BLYTHE BRIDGE STOKE-ON-TRENT ST11 9ND

3 bed 2 bath Detached

New-build three-bed detached home with large garden and easy commuter access..
- New-build three-bedroom detached home, ready to move into
- Open-plan kitchen-diner with French patio doors to garden
- Integrated appliances, recessed lighting and eco-conscious features
- Large private garden and generous plot size
- Freehold tenure and chain-free completion
- Fast broadband and excellent mobile signal for home working
- Above-average local crime rate; consider security measures
- Popular Blythe Fields location with good commuter links
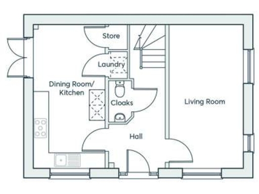
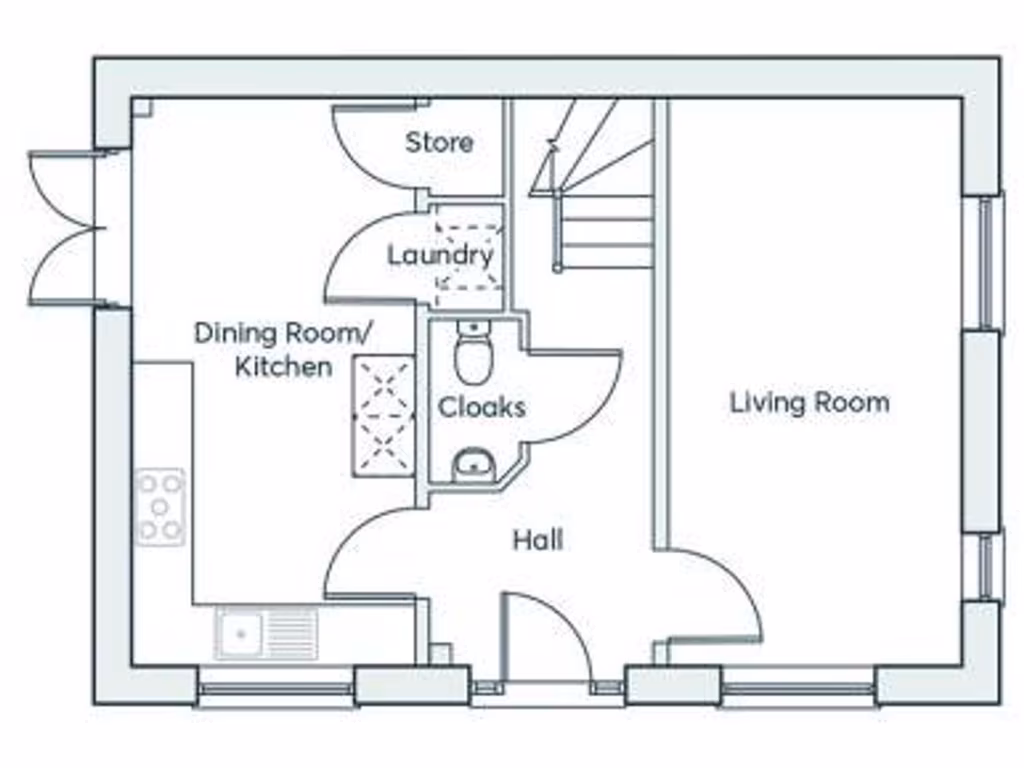
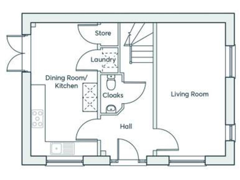
A modern three-bedroom detached new build on Blythe Fields, ready to move into and offered chain-free. The Kea design delivers bright living with an open-plan kitchen-diner, French patio doors to a generous private garden, and a sizeable living room with abundant natural light.

Built to contemporary, eco-conscious standards, the house includes integrated kitchen appliances, recessed lighting and fast broadband — practical for commuting and home working. The layout provides a ground-floor WC plus three well-proportioned bedrooms upstairs, suitable for a small family, first-time buyers or downsizers seeking low-maintenance living.

Practical selling points include freehold tenure, a large plot, good commuter links and several well-rated local schools within easy reach. Note the local area records above-average crime; prospective buyers should check local statistics and consider security measures. Overall this property is a straightforward, low-effort purchase for buyers wanting modern comfort with scope to personalise.

Property Details

Image Descriptions

Rooms

Textual Property Features

Target Audience

AI Tags

Detected Visual Features

Nearby Schools

Nearest Bars And Restaurants

,,,,}

Nearest General Shops

,,}

Nearest Grocery shops

,,}

Nearest Supermarkets

,,}

Nearest Religious buildings

,,}

Nearest Medical buildings

,,,}

Nearest Leisure Facilities

,,,,}

Nearest Tourist attractions

,,}

Nearest Train stations

,,,,}

Nearest Bus stations and stops

,,,,}

Nearest Hotels

,,}

Tags

Local Market Stats

AirBnB Data

Similar Properties

Meta

High Res Images

Compatible Images

Low res Images

Thumbnails

Raw Images

High Res Floorplan Images

Compatible Floorplan Images

Low res Floorplan Images

FloorplanImages Thumbnail

Raw Floorplan Images