Spacious rooms, garage and solar panels in a sought-after village location.
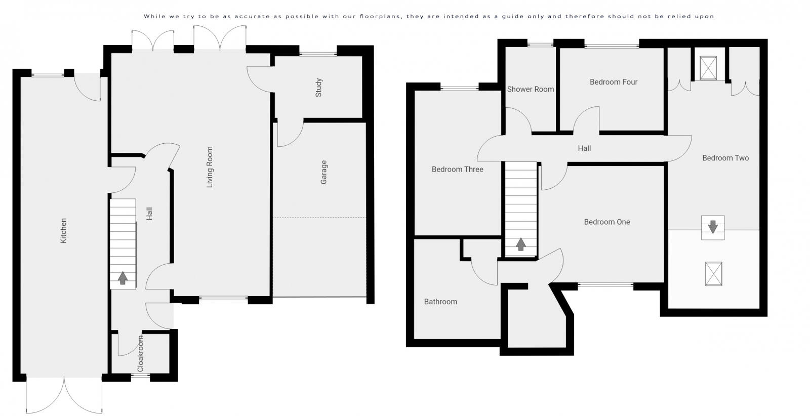
Extended four-bedroom semi-detached with circa 1,750 sq ft
Set on the edge of Nacton village, this extended four-bedroom semi-detached house offers generous, adaptable living across about 1,750 sq ft. The home features a long kitchen/diner, an L-shaped living room with garden doors, a handy study and a principal bedroom with walk-in wardrobe and en-suite — well-suited to families who need space to work and live. Solar panels and double glazing help reduce running costs, while the attached garage and shingled driveway provide secure off-street parking.
The house dates from the late 1960s/early 1970s and presents a largely traditional layout with good ceiling heights and solid cavity walls. Rooms are well-proportioned, offering scope for cosmetic updating or minor reconfiguration to personalise the accommodation. The rear garden is private with a patio and lawn — a decent plot for outdoor entertaining or children’s play.
Practical points to note: heating is via electric storage heaters, so buyers wanting gas central heating will need to consider installation costs. Mobile signal is intermittent and the property is sold freehold and chain free. There are existing easements affecting access which should be checked by a buyer’s solicitor. Overall this is a spacious family home in an affluent, village setting with excellent access to Ipswich, local schools and countryside amenities.
3 bedroom semi-detached house for sale in Sawmill Lane, Nacton, Ipswich, IP10 — £450,000 • 3 bed • 2 bath • 1575 ft²
4 bedroom detached house for sale in Felixstowe Road, Nacton, Ipswich, IP10 — £1,000,000 • 4 bed • 3 bath • 3000 ft²
2 bedroom detached bungalow for sale in Mill Piece, Nacton, IP10 — £545,000 • 2 bed • 2 bath • 904 ft²
4 bedroom detached house for sale in Felixstowe Road, Nacton, IP10 — £900,000 • 4 bed • 3 bath • 3574 ft²
4 bedroom detached house for sale in Falkenham Road, Kirton, IP10 — £575,000 • 4 bed • 3 bath • 2249 ft²
2 bedroom bungalow for sale in Mill Piece, Nacton, Ipswich, IP10 — £545,000 • 2 bed • 2 bath






















































































