Central Haywards Heath location near station — ideal starter home or rental.
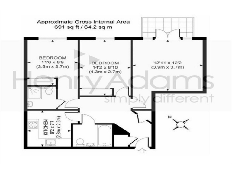
- Two double bedrooms with built-in wardrobes
- Master bedroom with modern en-suite shower
- Bright lounge with balcony and patio doors
- Separate kitchen with built-in appliances
- Newly installed boiler (January 2024) and EPC B
- Allocated off-street parking space in gated development
- Leasehold: 103 years remaining; service charge £870, ground rent £300
- No private garden; average-sized 691 sq ft accommodation
Light-filled and well-presented, this two double bedroom apartment sits in a secure gated block moments from Haywards Heath station and town centre. The master bedroom includes an en-suite, and both bedrooms have built-in wardrobes, making the layout practical for first-time buyers or buy-to-let investors.
Living space extends to a bright lounge with patio doors onto a usable balcony, and a separate kitchen with integrated appliances. Practical upgrades include a newly installed boiler (Jan 2024) and an EPC rating of B, helping running costs and tenancy appeal.
The flat comes with an allocated off-street parking space, lift access, a secure telephone entry system and no onward chain for a quicker sale. The lease has 103 years remaining.
Notes and costs to consider: the property is leasehold with an annual service charge of £870 and ground rent of £300. There is no private garden and the accommodation is average-sized at about 691 sq ft, so buyers seeking substantial outdoor space or larger living areas should look elsewhere.
2 bedroom flat for sale in Queens Road, Haywards Heath, RH16 — £300,000 • 2 bed • 2 bath • 483 ft²
2 bedroom flat for sale in Harlands Road, Haywards Heath, RH16 — £242,500 • 2 bed • 2 bath • 534 ft²
2 bedroom flat for sale in Harlands Road, Haywards Heath, RH16 — £275,000 • 2 bed • 1 bath • 674 ft²
2 bedroom apartment for sale in Harlands Road, Harlands House Harlands Road, RH16 — £240,000 • 2 bed • 2 bath • 691 ft²
2 bedroom apartment for sale in Brooklands, Haywards Heath, West Sussex, RH16 — £240,000 • 2 bed • 2 bath • 775 ft²
2 bedroom apartment for sale in Great Heathmead, Haywards Heath, West Sussex, RH16 — £275,000 • 2 bed • 1 bath • 646 ft²














































