**Standout Features:**
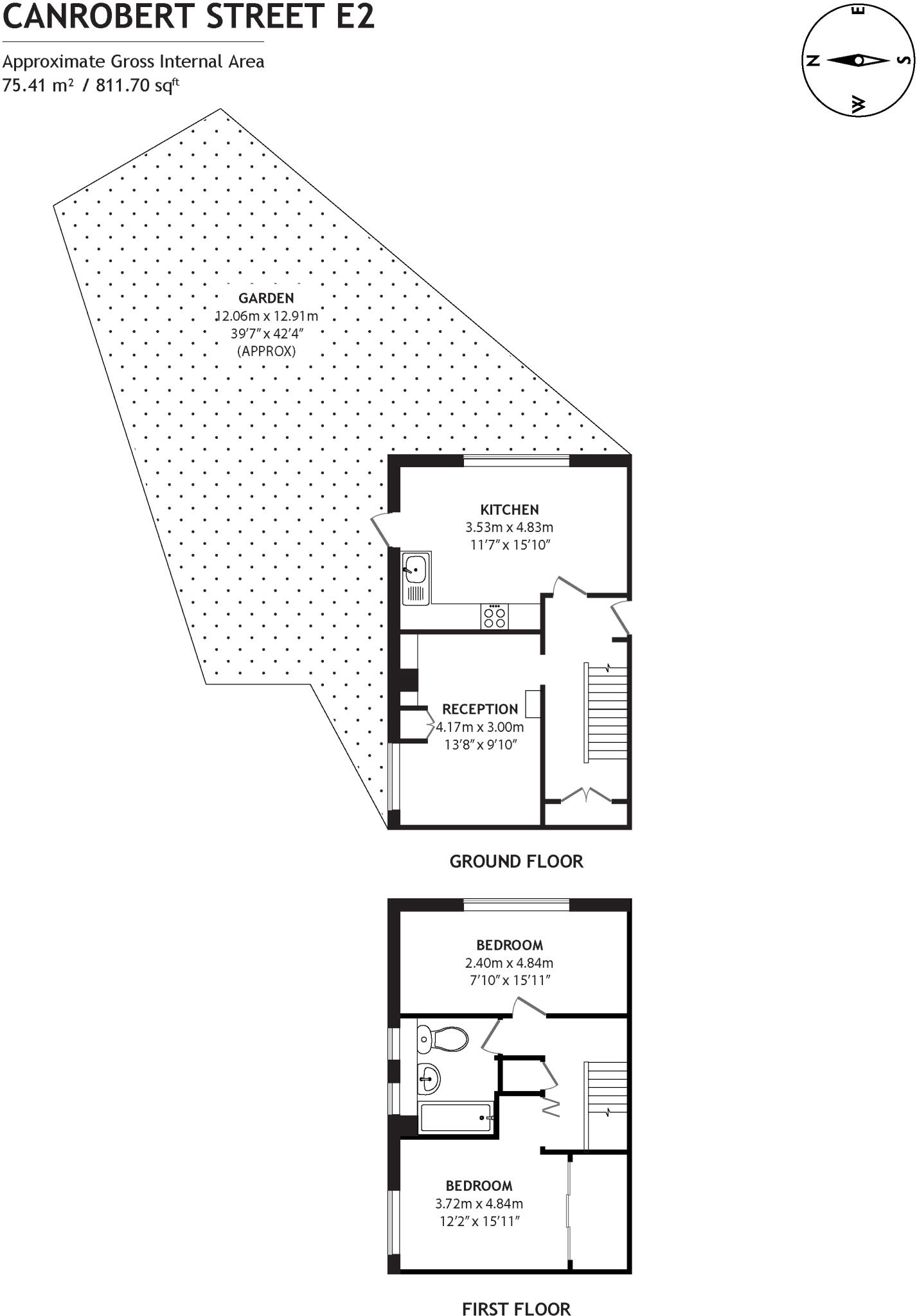
- Spacious two-bedroom maisonette with private corner garden
- Modern kitchen with gas hob and porcelain tiles
- Well-connected to transport links: short walk to Bethnal Green Underground and Cambridge Heath Overground Stations
- Vibrant local area, close to Colombia Road flower market, Broadway Market, and Brick Lane
- Opportunity for extension, subject to planning approval
**Concise Summary:**
Discover this inviting two-bedroom maisonette tucked away in the lively neighborhood of Bethnal Green. Perfect for first-time buyers or small families, this property boasts 811 sq. ft. of living space, featuring a cozy living room, a contemporary kitchen/diner with natural light and modern finishes, and two double bedrooms, including one with fitted wardrobes. Step outside to your own private corner garden, enhancing your outdoor living experience in an urban setting.
While the property benefits from an advantageous location near excellent amenities and transport options, it's worth noting the area's high crime rate and its need for potential insulation upgrades. Planning permission for extensions offers flexibility for future renovations, making this home a promising investment. With a reasonable service charge and access to well-rated local schools, this maisonette is not just a home; it’s an opportunity to settle into a vibrant community. Don’t miss out on this gem—schedule a viewing today and envision your future here!
3 bedroom maisonette for sale in Gwilym Maries House, 21 Canrobert Street, London, E2 — £600,000 • 3 bed • 1 bath • 936 ft²
2 bedroom maisonette for sale in Kedleston Walk, London, E2 — £625,000 • 2 bed • 1 bath • 763 ft²
2 bedroom apartment for sale in Elver Gardens, London, E2 — £525,000 • 2 bed • 1 bath • 812 ft²
2 bedroom flat for sale in Lysander House, Temple Street, London, E2 — £425,000 • 2 bed • 1 bath • 707 ft²
3 bedroom terraced house for sale in Corfield Street, London, E2 — £725,000 • 3 bed • 1 bath • 744 ft²
3 bedroom maisonette for sale in Old Bethnal Green Road, E2 — £730,000 • 3 bed • 1 bath • 831 ft²














































































