Chain-free three-bed detached with large garden — ideal for refurbishment or investment.
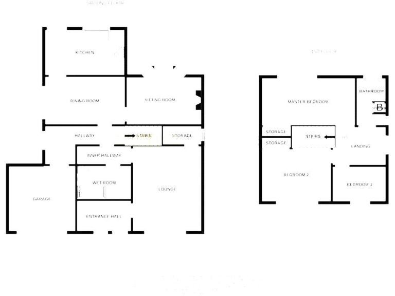
Freehold detached house on large plot, approx. 1,292 sq ft
Set on a large plot in Rudheath, this 1930s detached house offers substantial scope to modernise and add value. The property is chain-free and vacant, making it suitable for buyers who want a straightforward renovation project or investors seeking a refurbishment opportunity. The broad footprint (approximately 1,292 sq ft) and three reception rooms give flexibility for extended family living or reconfiguration.
Internally the house requires full modernisation: the kitchen, bathrooms and some internal finishes are dated and in need of upgrading. Construction is solid brick with no known wall insulation, so buyers should budget for thermal improvements and potential heating efficiency works despite mains gas central heating. The integral garage needs maintenance and may offer conversion potential subject to approvals.
Externally there is off-street parking and a generous enclosed rear garden providing scope for landscaping, extension or outbuilding space (subject to planning). The property sits in a deprived, industrious area of Northwich with average crime levels; local amenities include good schools, shops, playgrounds and fast broadband, but buyers should consider wider area socio-economic factors.
This home suits an experienced DIY buyer, developer, or investor who understands refurbishment costs and returns. It is offered freehold with no flood risk, excellent mobile signal and straightforward access to local schools and transport links.
2 bedroom terraced house for sale in Melchett Crescent, Rudheath, CW9 — £140,000 • 2 bed • 1 bath • 617 ft²
3 bedroom detached house for sale in Chester Road, Northwich, CW8 — £250,000 • 3 bed • 1 bath • 926 ft²
3 bedroom semi-detached house for sale in Belmont Road, Northwich, CW9 — £190,000 • 3 bed • 1 bath • 1210 ft²
2 bedroom semi-detached house for sale in Gadbrook Road, Rudheath, Northwich, Cheshire, CW9 — £145,000 • 2 bed • 1 bath • 894 ft²
2 bedroom semi-detached house for sale in , West Avenue, Rudheath, CW9 — £230,000 • 2 bed • 1 bath • 1012 ft²
3 bedroom end of terrace house for sale in St Johns Close, Northwich, CW9 — £220,000 • 3 bed • 1 bath • 889 ft²


























































































