Large Grade II flat with bay window, private terrace and parking — renovation needed, listed constraints apply.
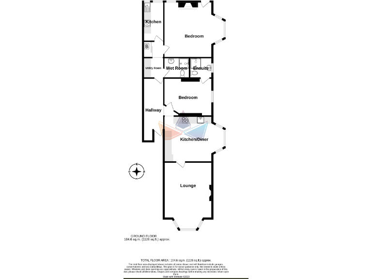
Approx. 1,208 sq ft — unusually large two-bedroom apartment
Spacious two-bedroom, two-bath apartment in a Grade II Victorian building, offered chain-free and with allocated off-street parking. High ceilings, a large bay-fronted living room and period details give the home strong character and generous living proportions (approximately 1,208 sq ft). A private sun terrace to the rear and short walk to Herne Bay seafront add seaside appeal.
The layout includes a large kitchen-diner, bay-front reception, two double bedrooms (one with en-suite), a wet room, utility area and direct rear access. There is potential to create an independent living space at the rear subject to correct planning consents — a benefit for investors or multi-generational households but not guaranteed.
Important practical points: the property is leasehold and Grade II listed, which will limit alterations and may complicate works or conversions. The building is of solid brick construction (likely uninsulated) and descriptions note potential damp and maintenance needs; expect renovation and ongoing upkeep costs. The surrounding area scores high for deprivation and crime, which may affect resale or rental demand despite good local amenities and transport links.
This home suits a buyer seeking spacious period accommodation near the sea and comfortable communal parking, and who accepts a renovation project within the constraints of listed status and leasehold tenure. It will particularly interest first-time buyers wanting generous rooms for the price, or investors able to factor in retrofit, listing restrictions and local market conditions.
2 bedroom flat for sale in Beltinge Road, Herne Bay, Kent, CT6 — £210,000 • 2 bed • 1 bath • 1064 ft²
2 bedroom flat for sale in Sunny Mead Court, 4 Central Parade, Herne Bay, Kent, CT6 — £275,000 • 2 bed • 2 bath • 943 ft²
2 bedroom flat for sale in Hanover Street, Herne Bay, CT6 — £200,000 • 2 bed • 1 bath • 802 ft²
2 bedroom flat for sale in Pier Avenue, Herne Bay, CT6 — £190,000 • 2 bed • 1 bath • 710 ft²
2 bedroom flat for sale in Bay House, South Road, Herne Bay, Kent, CT6 — £215,000 • 2 bed • 1 bath • 744 ft²
2 bedroom maisonette for sale in High Street, Herne Bay, CT6 — £215,000 • 2 bed • 1 bath • 801 ft²






















































