Chain-free period house with garden and strong commuter links.
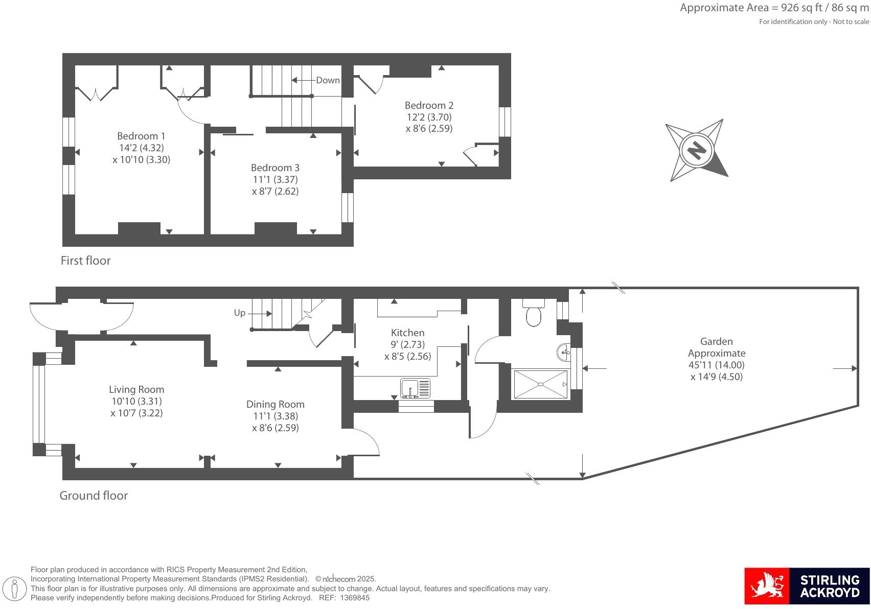
Three double bedrooms across two floors
This Victorian mid-terrace offers three double bedrooms and spacious, light-filled reception rooms configured in an open-plan layout. Its solid brick construction and original period features give character and scope for sympathetic restoration. The house is chain-free and freehold, and sits within easy reach of Norwood Junction, Selhurst and Thornton Heath stations — appealing for commuters and families.
The property requires renovation: interiors are dated with 1970s finishes, worn carpets and textured ceilings. Walls are likely uninsulated and the EPC is D, so updating heating, insulation and windows will improve comfort and running costs. The small plot and modest overall size limit extension potential without planning, but the generous rear garden provides private outdoor space for children or entertaining.
Local amenities, good schools and frequent bus and rail links add practical value, and the home suits buyers seeking a project to personalise or investors targeting rental demand. Be aware the wider area records higher-than-average crime and some indicators of local deprivation, which buyers should factor into affordability and security improvements.
Offered with no onward chain, this property is a straightforward purchase for someone wanting to modernise a period terrace to their own standard and unlock future value through refurbishment.
3 bedroom terraced house for sale in Cobden Road, London, SE25 — £500,000 • 3 bed • 1 bath • 1062 ft²
3 bedroom terraced house for sale in Woodside Avenue, London, SE25 — £475,000 • 3 bed • 1 bath • 967 ft²
3 bedroom house for sale in Selsdon Road, West Norwood, London, SE27 — £700,000 • 3 bed • 1 bath • 1088 ft²
2 bedroom semi-detached house for sale in Whitehorse Lane, London, SE25 — £365,000 • 2 bed • 1 bath • 819 ft²
3 bedroom terraced house for sale in Notson Road, London, SE25 — £400,000 • 3 bed • 1 bath • 958 ft²
5 bedroom end of terrace house for sale in Chartham Road, London, SE25 — £540,000 • 5 bed • 2 bath • 1123 ft²














































































