Elegant two bedroom period home minutes from Sloane Square and Eaton Square.
Private cobbled mews location with listed archway entrance
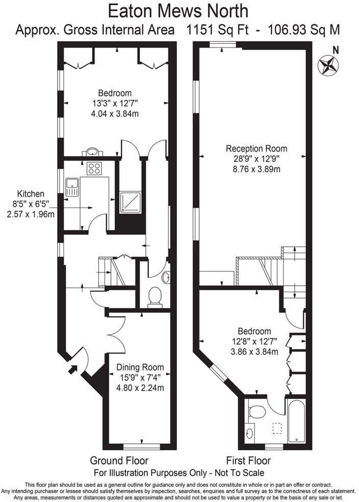
Large 1,151 sq ft two‑bed layout across two floors
Two en‑suite bathrooms plus guest WC for convenience
High ceilings, sash windows and wood flooring — strong period character
Close to Sloane Square, shops, restaurants and transport
Leasehold with 104 years remaining — buyer to note tenure
Listed status will restrict alterations and need consents
Solid brick walls with assumed poor insulation — retrofit likely needed
Set behind a listed archway on a private cobbled mews, this two‑bedroom period home occupies 1,151 sq ft over two floors. High ceilings, sash windows and wood flooring create authentic Georgian character while two en‑suite bathrooms and a guest WC add modern convenience.
The layout suits comfortable city living: separate reception and dining rooms, a fitted kitchen and discreet bedroom suites provide flexible space for daily life or entertaining. Sloane Square, Eaton Square and a wide choice of restaurants, shops and transport links are within easy walking distance.
Important practical points are stated plainly. The property is leasehold with 104 years remaining and carries listed status, which may restrict alterations and require listed‑building consents. The building is of solid brick construction with assumed minimal wall insulation, so buyers should allow for potential retrofit costs and consider energy‑efficiency improvements. Council tax is very expensive.
Overall this is a characterful, well‑located mews residence that will appeal to buyers seeking central Belgravia living and period detail. It offers immediate move‑in comfort but also clear renovation and maintenance considerations for longer‑term ownership planning.
2 bedroom mews property for sale in Eccleston Mews, SW1X — £2,495,000 • 2 bed • 2 bath • 1234 ft²
2 bedroom terraced house for sale in Burton Mews, London, SW1W — £2,350,000 • 2 bed • 2 bath • 792 ft²
2 bedroom house for sale in Grosvenor Crescent Mews, London, SW1X — £4,150,000 • 2 bed • 3 bath • 1635 ft²
5 bedroom mews property for sale in Lyall Mews, Belgravia, London, SW1X — £7,500,000 • 5 bed • 5 bath • 3841 ft²
4 bedroom house for sale in Eaton Mews South, Belgravia, London, SW1W, United Kingdom, SW1W — £6,950,000 • 4 bed • 4 bath • 2174 ft²
2 bedroom terraced house for sale in Chester Cottages, Bourne Street, Belgravia, SW1W — £2,250,000 • 2 bed • 1 bath • 900 ft²










































