Large character home with double garage, gated parking and wraparound gardens.
Four double bedrooms and two bathrooms ideal for family living
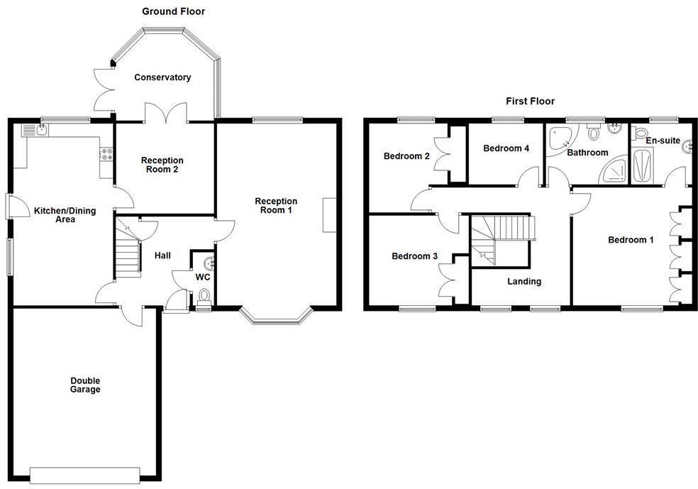
Set on a large, private corner plot in Astley Bank, this substantial four-double-bedroom detached house offers generous family living across approximately 2,288 sq ft. The property combines traditional stone character with modern fixtures: a large open-plan kitchen/diner with island, three reception rooms plus a conservatory, an enviable gallery landing and a double garage with gated off-road parking. Wrap‑around gardens and elevated views add outdoor appeal and privacy.
The principal bedroom benefits from an en suite and there is a family bathroom on the first floor, so the layout suits family life and multi‑zonal use. Practical features include mains gas central heating, double glazing and significant built-in storage, while the large plot provides scope for landscaping or extension (subject to consents). Local schools, bus routes and road links to Blackburn and Bolton are within easy reach.
Be mindful of a few material points: the house is an older build (pre-1900) with stone walls and assumed lack of cavity insulation, the EPC is rated D, and broadband speeds are reported as slow. Council Tax sits in Band G, which is relatively expensive. These factors point to potential running‑cost and upgrade considerations for buyers wanting the most energy‑efficient home.
For families seeking space, character and a secluded garden plot with parking and garage capacity, this property is a strong contender. Investors or buyers prioritising low running costs should factor in potential insulation, heating or connectivity improvements.
4 bedroom detached house for sale in Plover Crescent, Darwen, BB3 — £325,000 • 4 bed • 3 bath • 1266 ft²
4 bedroom detached house for sale in Marabou Drive, Darwen, Lancashire, BB3 — £425,000 • 4 bed • 2 bath • 1762 ft²
4 bedroom detached house for sale in High Bank Crescent, Darwen, BB3 — £225,000 • 4 bed • 2 bath • 1400 ft²
4 bedroom detached house for sale in Marsh Gate, Darwen, BB3 — £350,000 • 4 bed • 2 bath • 1643 ft²
4 bedroom detached house for sale in Spire Close, Darwen, BB3 — £325,000 • 4 bed • 3 bath • 1735 ft²
4 bedroom detached house for sale in Kirkdale Close, Darwen, BB3 — £340,000 • 4 bed • 2 bath • 1718 ft²






































































































































































































