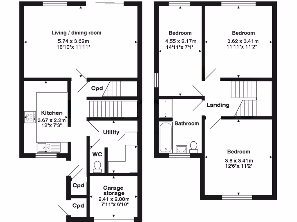
**Standout Features:**
- Three spacious double bedrooms
- Modern kitchen with appliances
- Utility room and convenient downstairs WC
- Peaceful village location with low crime rates
- Off-road parking for up to three vehicles
- Large, attractive garden with a deck, lawns, and raised flower beds
- Two huge sheds and a workshop, providing ample storage and hobby space
- Chain-free sale; EPC Rating: C
Welcome to this charming semi-detached family home nestled in the serene cul-de-sac of Churchill Close, Alderholt. Boasting three generous double bedrooms, this property is perfect for growing families or those seeking extra space for guests or a home office. The modern kitchen is equipped with a five-ring gas hob, double electric oven, and ample storage, ideal for the home chef. A dedicated utility room and a handy downstairs WC enhance convenience.
The bright lounge and dining area flows seamlessly into a beautiful garden, featuring a decked patio, lush lawn, and vibrant raised beds—an ideal outdoor space for relaxation or children's play. Storage abounds with the front section of the former garage, two sizable sheds, and a well-equipped workshop, allowing for hobbies or additional storage.
Set in a peaceful village environment, local amenities including a convenience store, pub, and schools are just a short walk away, with more extensive shopping options within a 15-minute drive. Ideal for families, this home offers great access to the natural beauty of the New Forest National Park just 6 miles away. Don’t miss your chance to secure this lovely property in a desirable location—an exclusive opportunity awaits!
3 bedroom semi-detached house for sale in Churchill Close, Alderholt, SP6 — £324,950 • 3 bed • 2 bath • 797 ft²
3 bedroom semi-detached house for sale in Churchill Close, Alderholt, SP6 — £330,000 • 3 bed • 1 bath • 1942 ft²
3 bedroom house for sale in Earlswood Drive, Alderholt, SP6 — £290,000 • 3 bed • 2 bath • 695 ft²
4 bedroom detached house for sale in Station Road, Alderholt, Fordingbridge, SP6 — £560,000 • 4 bed • 2 bath • 1800 ft²
3 bedroom detached bungalow for sale in Broomfield Drive, Alderholt, Fordingbridge, SP6 — £400,000 • 3 bed • 1 bath • 958 ft²
2 bedroom semi-detached house for sale in Alderholt, SP6 — £285,000 • 2 bed • 1 bath • 734 ft²














































