Contemporary three-bedroom home with large garden and garage, ideal for small families.
South-facing generous rear garden with patios and lawn
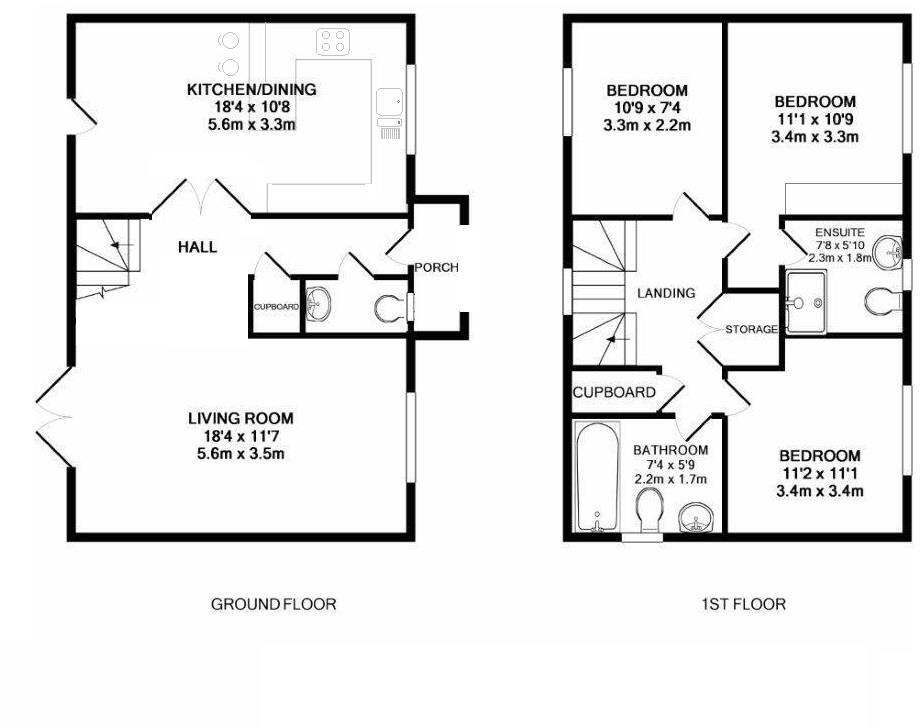
Built in 2018, this well-presented three-bedroom detached house sits on a generous south-facing plot in an exclusive small development. The ground floor benefits from underfloor heating, a bright open living room with patio doors to the garden, and a contemporary fitted kitchen with integrated appliances — practical family spaces that flow to the private rear lawn and patio areas.
Upstairs there are three comfortable bedrooms, the principal with built-in wardrobes and an en-suite, plus a modern family bathroom. The layout is efficient and low-maintenance, and the property includes a large single garage and driveway parking — useful for families with one or two cars or for extra storage space.
Practical points to note: the home is compact internally at around 779 sq ft, so storage and living arrangements will suit a small family or those wanting lower-maintenance accommodation rather than large, expansive rooms. Each home contributes to the upkeep of the development’s common areas; prospective buyers should check the level of those contributions. Local primary school provision includes some schools currently rated “Requires improvement”, though a highly ranked independent school and a “Good” secondary are also nearby.
Set close to countryside walking routes, shops and bus links, this freehold home offers modern comforts, generous outdoor space and easy access to local amenities — a tidy, turnkey option for families seeking a contemporary, low-upkeep house within reach of Wiltshire’s villages and transport links.
3 bedroom detached house for sale in Hastings Drive, Calne, SN11 — £395,000 • 3 bed • 2 bath • 1032 ft²
3 bedroom detached house for sale in Gregor Drive, Calne, SN11 — £375,000 • 3 bed • 2 bath • 1118 ft²
4 bedroom detached house for sale in Sparrows Crescent, Calne, SN11 — £489,950 • 4 bed • 3 bath • 1701 ft²
3 bedroom semi-detached house for sale in Angell Drive, Calne, SN11 — £325,000 • 3 bed • 2 bath • 962 ft²
3 bedroom semi-detached house for sale in Dew Way, Calne, SN11 — £375,000 • 3 bed • 2 bath • 1217 ft²
4 bedroom detached house for sale in Ceres Place, Calne, SN11 — £675,000 • 4 bed • 3 bath • 999 ft²










































































































