Compact investment with reliable rental income in a bustling central location.
Long lease: 999 years from 2009 (approx. 983 years remaining)
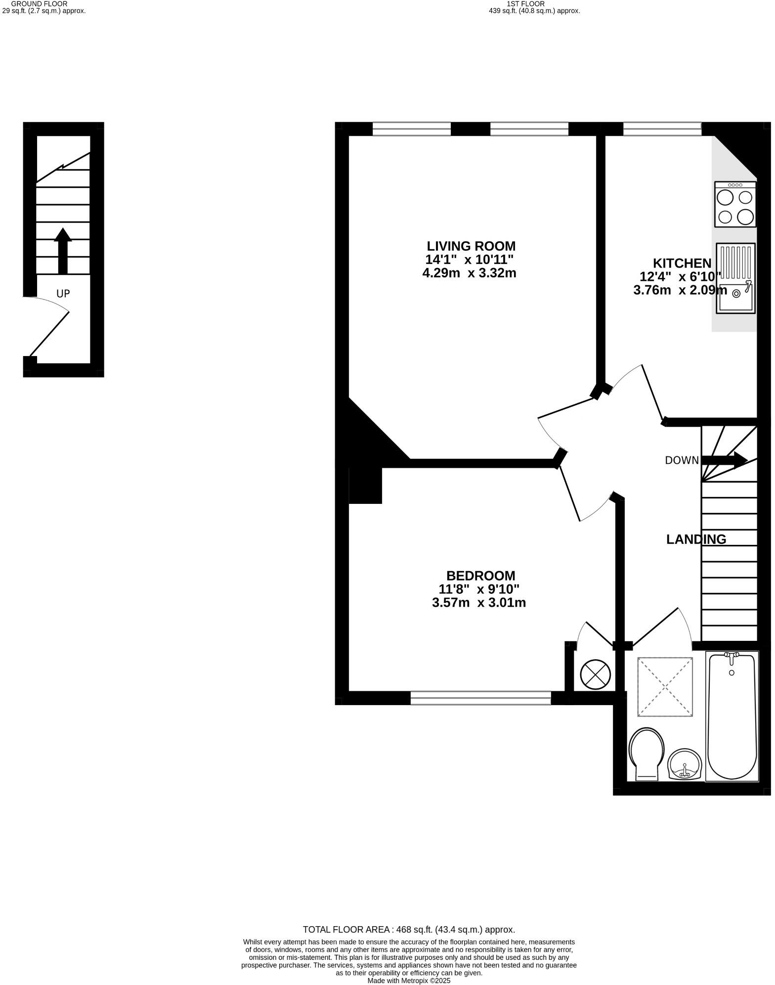
A well-presented one-bedroom apartment positioned above shops on Bridge Street, Pinner. The flat offers a bright living room, separate fitted kitchen and a generous double bedroom, arranged for straightforward rental occupation or easy owner-occupation. The long lease (999 years from 2009, approx. 983 years remaining) removes common leasehold concerns and supports long-term investment planning.
This property is presented as a ready-to-go buy-to-let with an expected rent of £1,300 PCM and an attractive gross yield of about 6.9% (based on the supplied price and rent figures). The central location places supermarkets, cafes, banks, a station and a wide range of amenities within easy walking distance—strong tenant appeal for commuters, professionals and local workers.
Practical considerations are clear: the apartment sits above retail units and benefits from rear access, but the building is in a busy urban location. The area records a high crime indicator and a medium flooding risk; these factors may affect insurance costs and tenant perception. Internal space is average at about 468 sq ft, so the layout suits singles or couples rather than larger households.
Overall, this is a pragmatic, low-maintenance investment with solid rental figures and a long lease. Buyers should factor in the urban location, local crime and flood risk when assessing net returns and insurance costs.
1 bedroom apartment for sale in Marsh Road, Pinner, Middlesex, HA5 — £200,000 • 1 bed • 1 bath • 428 ft²
1 bedroom apartment for sale in West End Avenue, Pinner, Middlesex, HA5 — £300,000 • 1 bed • 1 bath • 480 ft²
1 bedroom flat for sale in Station Road, Edgware, HA8 — £310,000 • 1 bed • 1 bath • 524 ft²
3 bedroom duplex for sale in Bridge Street, Pinner, HA5 — £525,000 • 3 bed • 1 bath • 1173 ft²
1 bedroom flat for sale in Balfour Road, Hounslow, TW3 — £250,000 • 1 bed • 1 bath • 515 ft²
2 bedroom flat for sale in Marsh Road, Pinner, HA5 — £349,999 • 2 bed • 1 bath • 800 ft²


































