Large period residence near station and excellent local schools.
Six bedrooms plus annex-style rear room with shower
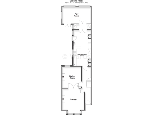
This substantial six-bedroom Victorian end-of-terrace offers generous, flexible accommodation arranged over three floors, plus an annex-style room with a shower. Located close to Ashford town centre and the station with a high-speed link to London, the home suits growing families needing space and easy commuting.
Period features such as sash windows, high ceilings and red-brick gables provide character, while practical updates include double glazing and mains gas central heating. The ground floor includes a lounge, dining room and a 20ft kitchen/breakfast room; two bedrooms have en-suite showers and a family bathroom serves the upper floors.
Outside there is off-street parking for up to three vehicles and a courtyard-style garden with potential to improve. The property is offered chain free, making it straightforward to move quickly.
Buyers should note material drawbacks frankly: the property sits in a higher-crime, more deprived area and the small plot and courtyard garden limit outdoor space. There are signs of damp risk in the rear patio/garden area and the house will benefit from some refurbishment to modernise rooms and services. Prospective purchasers should verify all measurements and legal details.
 6 bedroom detached house for sale in Maidstone Road, Ashford, TN24 8UA, TN24 — £750,000 • 6 bed • 5 bath • 2303 ft²
 6 bedroom detached house for sale in Maidstone Road, Ashford, TN24 8UA, TN24 — £750,000 • 6 bed • 5 bath • 2303 ft² 5 bedroom terraced house for sale in Magazine Road, Ashford, TN24 8NN, TN24 — £490,000 • 5 bed • 3 bath • 1722 ft²
 5 bedroom terraced house for sale in Magazine Road, Ashford, TN24 8NN, TN24 — £490,000 • 5 bed • 3 bath • 1722 ft² 5 bedroom detached house for sale in Sandyhurst Lane, Ashford, Kent, TN25 — £600,000 • 5 bed • 2 bath • 1282 ft²
 5 bedroom detached house for sale in Sandyhurst Lane, Ashford, Kent, TN25 — £600,000 • 5 bed • 2 bath • 1282 ft² 3 bedroom terraced house for sale in Earlsworth Road, Willesborough, TN24 — £280,000 • 3 bed • 1 bath • 850 ft²
 3 bedroom terraced house for sale in Earlsworth Road, Willesborough, TN24 — £280,000 • 3 bed • 1 bath • 850 ft² 3 bedroom semi-detached house for sale in Francis Road, Ashford, Kent, TN23 — £300,000 • 3 bed • 1 bath • 963 ft²
 3 bedroom semi-detached house for sale in Francis Road, Ashford, Kent, TN23 — £300,000 • 3 bed • 1 bath • 963 ft² 6 bedroom detached house for sale in Sweet Bay Crescent, Ashford, TN23 — £600,000 • 6 bed • 4 bath • 1680 ft²
 6 bedroom detached house for sale in Sweet Bay Crescent, Ashford, TN23 — £600,000 • 6 bed • 4 bath • 1680 ft²














































































