Character-filled seaside cottage within easy walking distance of beach and sailing.
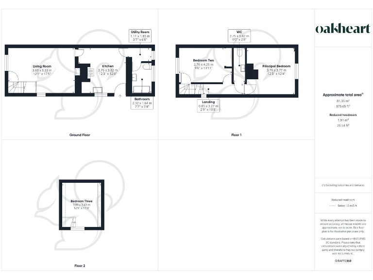
Grade II listed 17th-century cottage with original beams and inglenook fireplace|Three double bedrooms, plus first-floor cloakroom, one ground-floor bathroom|Southerly decked garden, easy maintenance, small plot and limited expansion|Driveway parking for two cars; space suitable for small boat storage|Timber-frame construction assumed uninsulated; retrofit likely needed|Electric storage heaters and secondary glazing — consider heating upgrade|Mid-terrace position in small town fringe; very low local crime rate|Sold by auction: 4.5% non-refundable Reservation Fee, 56-day completion
Gossip Cottage is a rare Grade II listed 17th-century cottage on Mersea Island combining historic charm with coastal convenience. Exposed beams, multi-pane windows and an inglenook fireplace deliver strong period character, while a rustic farmhouse kitchen and southerly decked garden make the house immediately liveable for someone seeking a distinctive seaside home.
Practical points to note: the house is timber-framed with assumed no insulation, heated by electric storage heaters and fitted with secondary glazing. These features keep running costs and retrofit work as considerations; the property will suit a buyer comfortable with upgrading heating and insulation over time. The mid-terrace position and small plot limit expansion possibilities.
This sale is by modern auction method. Successful bidders must pay a non-refundable Reservation Fee (4.5% of the purchase price, minimum £6,600) and complete within 56 days. A Buyer Information Pack is available for a fee and prospective mortgage buyers should confirm lending suitability before bidding. The listed status will restrict structural alterations and may complicate some renovation plans.
For buyers who value authenticity and location: the cottage is an appealing coastal bolthole a short walk from The Anchorage, the Oyster Bar, beach and sailing facilities. It offers off-street parking for two cars and low-maintenance outdoor space ready for relaxing or entertaining while retaining strong scope for sympathetic improvement to increase comfort and value.
2 bedroom cottage for sale in Coast Road, West Mersea, CO5 — £470,000 • 2 bed • 1 bath • 507 ft²
4 bedroom cottage for sale in The Lane, West Mersea, CO5 — £780,000 • 4 bed • 3 bath • 1808 ft²
2 bedroom end of terrace house for sale in Church Road, West Mersea,, CO5 — £270,000 • 2 bed • 1 bath • 671 ft²
2 bedroom detached house for sale in Coast Road, CO5 — £500,000 • 2 bed • 2 bath • 1001 ft²
2 bedroom semi-detached house for sale in Churchfields, West Mersea, CO5 — £325,000 • 2 bed • 1 bath • 973 ft²
3 bedroom house for sale in High Street, West Mersea,, CO5 — £375,000 • 3 bed • 1 bath • 749 ft²


























































































































