Spacious two-bedroom village home with private garden and driveway parking.
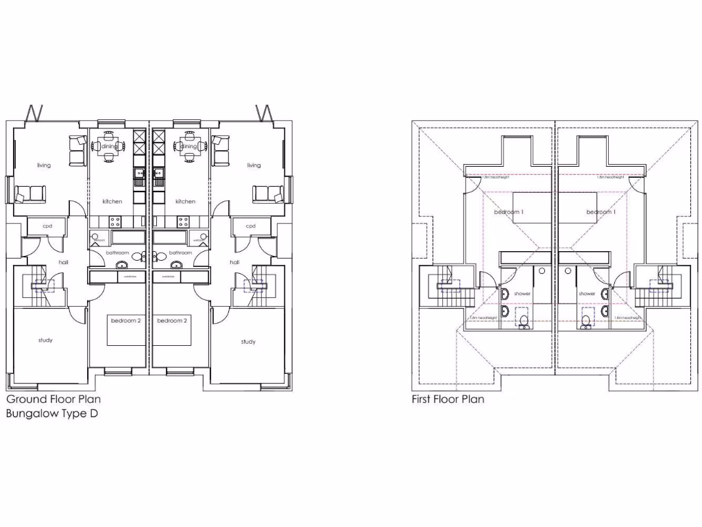
Two double bedrooms and two bathrooms across two storeys
10-year new-build warranty included for buyer protection
Energy-efficient construction and contemporary fixtures throughout
Large overall floor area (approx 1,905 sqft) and large plot size
Private garden, driveway parking; selected plots offer garages
Walking distance to village amenities, primary school and pubs
CGI images used; final materials, landscaping and finishes may change
Freehold tenure; new development — reservations advised due to limited plots
Step into a newly built two-bedroom home on a small, high-spec development in Brandesburton. Built by a local developer, these homes feature contemporary kitchens and bathrooms, energy-efficient construction, private gardens and driveway parking. The property offers generous floor area across two storeys and benefits from a 10-year new-build warranty for added reassurance.
The village location places shops, pubs, an Italian restaurant and a highly regarded primary school within walking distance, while Beverley, Hornsea, Driffield and Hull are all easily reached by road. The setting is peaceful and semi-rural with well-landscaped verges and good separation between plots.
Practical positives include fast broadband, excellent mobile signal, low local crime and large plot sizes. Buyers should note images are CGI and final materials, landscaping and internal specifications may vary from promotional visuals. Reservations are being taken now and selected plots include garages.
This home will suit young families seeking village life, downsizers wanting single-level alternatives on the development, or buyers looking for a low-maintenance new build with modern finish and energy efficiency. Read the written specification carefully and confirm exact finishes before exchange.
2 bedroom semi-detached house for sale in Dalton Fields, New Road, Brandesburton, Driffield, YO25 — £220,000 • 2 bed • 2 bath • 652 ft²
3 bedroom detached bungalow for sale in New Road, Brandesburton, Driffield, YO25 — £440,000 • 3 bed • 2 bath • 1100 ft²
3 bedroom detached house for sale in Burton Pasture Development, Brandesburton, YO25 — £495,000 • 3 bed • 2 bath • 2188 ft²
4 bedroom detached house for sale in Dalton Fields, New Road, Brandesburton, Driffield, YO25 — £430,000 • 4 bed • 3 bath • 1169 ft²
4 bedroom semi-detached house for sale in Main Street, Brandesburton, Driffield, East Riding of Yorkshi, YO25 — £370,000 • 4 bed • 3 bath • 1995 ft²
2 bedroom terraced house for sale in Boardman Park, Brandesburton, YO25 8RS, YO25 — £180,000 • 2 bed • 1 bath • 730 ft²






















































































































