Four flats, council-funded rents, 19% yield — renovation required, auction sale.
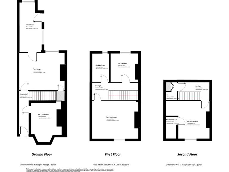
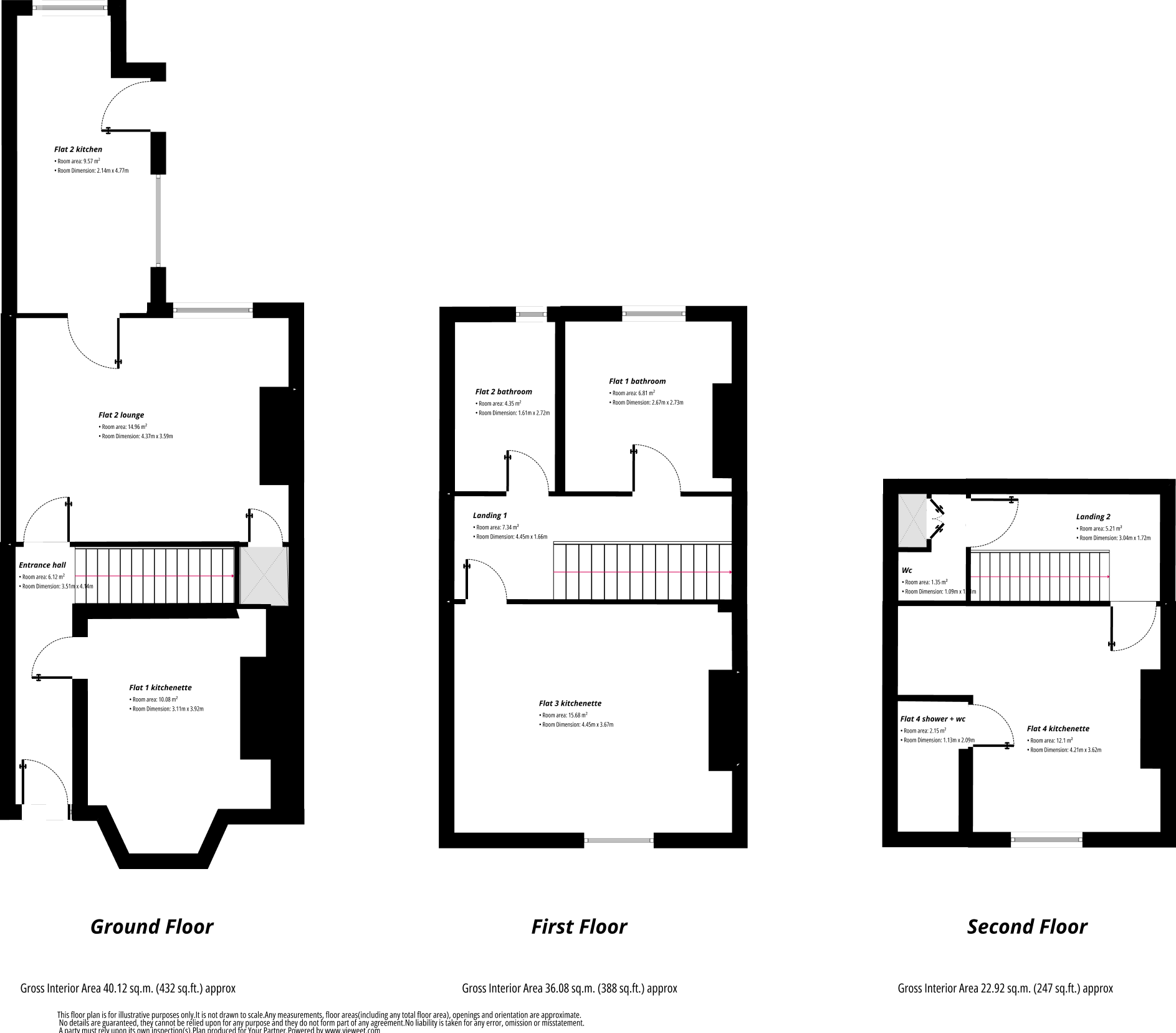
Four self-contained flats across three levels, fully let to long-term tenants
A rare high-yield, freehold investment in The Meadows — this Victorian mid-terrace is arranged as four self-contained units, all let long-term with rental income paid directly by the council/government. At the current guide price the property offers an exceptional gross yield (c.19%), making it attractive to investors seeking immediate, secure cashflow.
The building needs modernisation throughout: wear-and-tear, dated internal finishes and likely upgrading to thermal standards (solid brick walls with no insulation) are clear considerations. Recent safety work includes professionally installed interior fire doors (May 2024) and the property benefits from an EPC rating of C and mains gas central heating, but further energy or refurbishment works will improve value and tenant comfort.
Sold at auction with binding contracts on sale, purchasers should factor in the required 10% deposit, buyer’s fee and any special conditions in the legal pack. The property sits in the Old Meadows Conservation Area close to The Meadows, the River Trent and local schools — a central urban location with excellent mobile and broadband connectivity but higher-than-average crime and local area deprivation to note.
For a buyer targeting secure income from council-funded tenancies and willing to invest in renovation, this property delivers immediate yield and future revalue potential once upgraded.
3 bedroom terraced house for sale in 48 Bathley Street, Nottingham, NG2 2LH, NG2 — £150,000 • 3 bed • 1 bath
5 bedroom house of multiple occupation for sale in 1A & 1B Radford Grove Lane, Nottingham NG7 5QB, NG7 — £295,000 • 5 bed • 1 bath • 905 ft²
4 bedroom end of terrace house for sale in Woolmer Road, Nottingham, NG2 — £180,000 • 4 bed • 1 bath • 1088 ft²
4 bedroom maisonette for sale in 548A Radford Road, Nottingham NG7 7EA, NG7 — £100,000 • 4 bed • 1 bath • 631 ft²
3 bedroom terraced house for sale in 115 Exeter Road, New Basford, Nottingham, NG7 6LR, NG7 — £125,000 • 3 bed • 1 bath
3 bedroom terraced house for sale in Wilford Crescent East, The Meadows, Nottinghamshire, NG2 2ED, NG2 — £200,000 • 3 bed • 1 bath • 1091 ft²










































