Spacious period home with extension potential and large gardens.
17th-century farmhouse, recently refurbished throughout
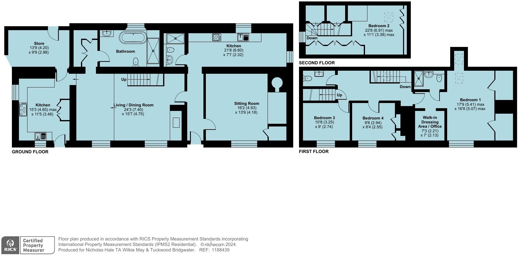
Large living/dining room with 23'+ inglenook fireplace
Two kitchens — potential annexe or Airbnb income
Principal bedroom with dressing area and en-suite shower
Planning permission for triple garage and extra accommodation
Large cottage-style gardens and off-road parking
EPC C70; Council Tax Band E and above-average local crime
Double glazed; mains gas heating; granite walls with internal insulation
This 17th-century farmhouse has been sympathetically refurbished to combine historic character with modern comfort. Exposed beams, two inglenook fireplaces and granite walls give strong period appeal, while recent upgrades include double glazing, modern kitchens and mains gas central heating.
Flexible living works well for families or those wanting rental potential: spacious reception rooms, two kitchens and a self-contained ground-floor layout could easily serve as an annexe or short-let. The principal bedroom includes a dressing area and an en-suite shower room; there are three further bedrooms including a large top-floor room currently used as a playroom.
Outside, cottage-style front gardens and extensive lawns to the side and rear sit on a large plot with off-road parking. Planning permission is already granted for a triple garage and additional accommodation, offering clear scope to extend value. EPC C70 and Freehold tenure.
Notable practical points: council tax band E and local crime levels are above average; buyers should verify services and title documents. The property sits on a village fringe with good M5 access and local amenities but retains a rural outlook rather than urban convenience.
6 bedroom barn conversion for sale in Withy Road, West Huntspill, Highbridge, TA9 — £850,000 • 6 bed • 4 bath • 2781 ft²
4 bedroom detached house for sale in Denmans Lane, Cannington, Bridgwater, TA5 — £750,000 • 4 bed • 2 bath • 2541 ft²
4 bedroom detached house for sale in Meareway, Westhay, Glastonbury, Somerset, BA6 — £400,000 • 4 bed • 1 bath • 1845 ft²
4 bedroom detached house for sale in Webbers Way, Puriton, TA7 — £352,500 • 4 bed • 2 bath • 1093 ft²
4 bedroom detached house for sale in Withy Road, East Huntspill, Highbridge, TA9 — £565,000 • 4 bed • 1 bath • 1409 ft²
3 bedroom semi-detached house for sale in Rowlands Rise, Puriton, Nr. Bridgwater, TA7 — £342,950 • 3 bed • 1 bath • 776 ft²


































































































