Chain-free period property with cellar and established rear garden, ready to personalise.
Grade II listed Georgian house, built c.1700, in conservation area
Chain free freehold on a prestigious Rochester street
Four bedrooms, two bathrooms, approx. 1,669 sq ft living space
Large cellar (22'2" x 11'5") offers storage or conversion potential
Established rear garden; substantial for the setting though overall plot small
Listed status restricts alterations and may complicate works/consents
Slow broadband speeds locally; mobile signal is excellent
Local crime levels recorded as very high — consider security measures
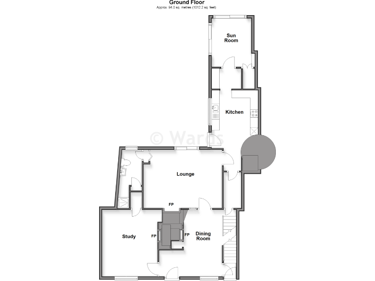
Set on one of Rochester’s most prestigious streets, this Grade II listed Georgian house dates from 1700 and offers four bedrooms across three storeys plus a large cellar. The property is chain free and freehold, making it suitable for buyers who want to start work promptly. The house retains strong period character and practical living spaces including a bay lounge, dining room, study and a sun room.
The garden is described as established and substantial for the immediate setting, providing valuable outdoor space for family use and entertaining. Internally the layout and room sizes (approximately 1,669 sq ft) create clear scope to reconfigure or modernise: a sensible renovation budget would unlock both comfort and potential value. Local schooling includes highly regarded state and independent options close by, which will appeal to families.
Important practical points: the listed status and conservation-area location protect historic features but will restrict alterations and may complicate works or extensions. Broadband speeds are slow in the area and recorded local crime levels are very high — both factors to check carefully if they influence your lifestyle or investment plans. Mobile signal is excellent and there is no identified flood risk.
Overall this is a character-rich family home with immediate occupancy possible and genuine scope to modernise and personalise. It suits buyers who value period fabric and a prestigious address and who are prepared to work within listing constraints and address practical issues such as broadband and security.
4 bedroom end of terrace house for sale in St. Margarets Street, Rochester, ME1 — £600,000 • 4 bed • 2 bath • 2270 ft²
4 bedroom terraced house for sale in High Street, Rochester, Kent, ME1 — £400,000 • 4 bed • 2 bath • 1411 ft²
8 bedroom detached house for sale in Historic Eight Bedroom Residence, St. Margarets Street, Rochester, ME1 — £1,100,000 • 8 bed • 3 bath • 4766 ft²
4 bedroom town house for sale in Prospect Row, Gillingham, Kent, ME7 — £500,000 • 4 bed • 2 bath • 1462 ft²
6 bedroom semi-detached house for sale in Maidstone Road, Rochester, ME1 — £775,000 • 6 bed • 2 bath
4 bedroom detached house for sale in Albany Road, Rochester, Kent, ME1 — £500,000 • 4 bed • 2 bath • 997 ft²


















































































